Op een uitstekende locatie, op steenworp afstand van de historische binnenstad van Leiden en het Singelpark, ligt deze charmante eengezinswoning uit het begin van de vorige eeuw. De woning beschikt over een lichte woonkamer, twee slaapkamers en een sfeervolle patio. Dankzij de verzorgde staat en diverse vernieuwingen in de afgelopen jaren is dit een woning die zonder grote aanpassingen direct te betrekken is.
De woning heeft een prettige sfeer met hoge plafonds en grote raampartijen die zorgen voor veel lichtinval. In 2019 zijn zowel de badkamer als de dakbedekking van de uitbouw vernieuwd en in 2020 is een nieuwe cv-ketel geplaatst. De woning is daarnaast netjes onderhouden en opgefrist, waardoor een verzorgd en comfortabel geheel is ontstaan.
De Prins Hendrikstraat is een rustige straat met een zeer centrale ligging. Het bruisende centrum van Leiden ligt op korte loopafstand, evenals het Singelpark. Ook Leiden Centraal Station, winkels en scholen zijn eenvoudig bereikbaar.
Indeling
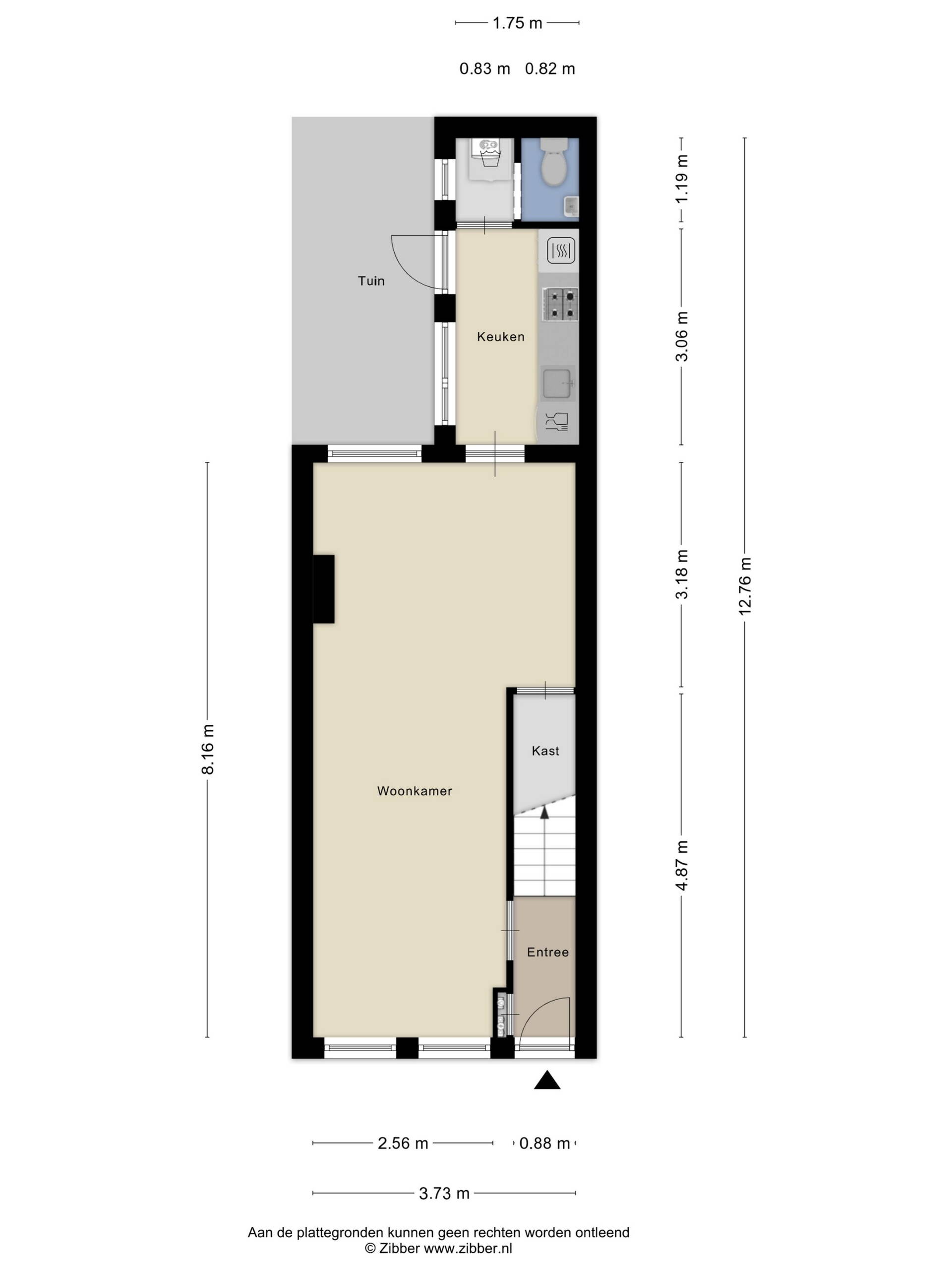
Begane grond
Entree met hal en trapopgang naar de eerste verdieping. De woonkamer is ruim en licht dankzij de grote raampartijen en het hoge plafond, wat zorgt voor een prettig gevoel van ruimte. Een praktische trapkast biedt extra bergruimte. Aan de achterzijde bevindt zich de gesloten keuken, uitgevoerd in een tijdloze stijl en voorzien van diverse inbouwapparatuur. Vanuit de keuken is de patio bereikbaar, een fijne en beschutte buitenruimte. Achter de keuken bevindt zich een hal met de opstelplaats voor de cv-ketel en de aansluitingen voor wasmachine en droger. Hiernaast ligt de toiletruimte.
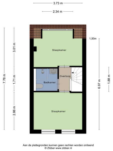
Eerste verdieping
De overloop geeft toegang tot twee slaapkamers en de badkamer. Aan de voorzijde bevindt zich een ruime slaapkamer met grote raampartijen. De tweede slaapkamer ligt aan de achterzijde en is voorzien van een dakkapel. De badkamer, vernieuwd in 2019, ligt tussen de slaapkamers en beschikt over een douche, wastafel en tweede toilet.
Bijzonderheden
Bouwjaar circa 1910
Niet-bewonersclausule van toepassing
Bij woningen ouder dan 25 jaar hanteren wij standaard een ouderdoms- en asbestclausule
Oplevering in overleg, kan snel