In de geliefde, kindvriendelijke wijk Voorhof in Leiderdorp gelegen moderne en zeer goed onderhouden 5-kamer eengezinswoning met een royale achtertuin en 10 zonnepanelen. De woning beschikt over 4 slaapkamers, een oprit voor 2 auto’s en een luxe badkamer en keuken. Deze schitterende woning is niet alleen fraai afgewerkt, maar ook goed geïsoleerd! In 2023 zijn alle kozijnen in het huis vervangen door kunststof kozijnen met triple en dubbel glas.
In de directe omgeving vindt u onder meer diverse scholen, meerdere sportfaciliteiten en winkelcentrum ‘Winkelhof’. Het (historische) centrum van Leiden ligt op een kleine 15 minuten fietsen en via de uitvalswegen (A4 en N11) bent u snel op weg naar Amsterdam, Rotterdam, Utrecht of Den Haag. Ook voor bos of strand hoeft u niet ver te rijden; binnen 20 minuten kunt u een heerlijke wandeling maken.
Indeling:
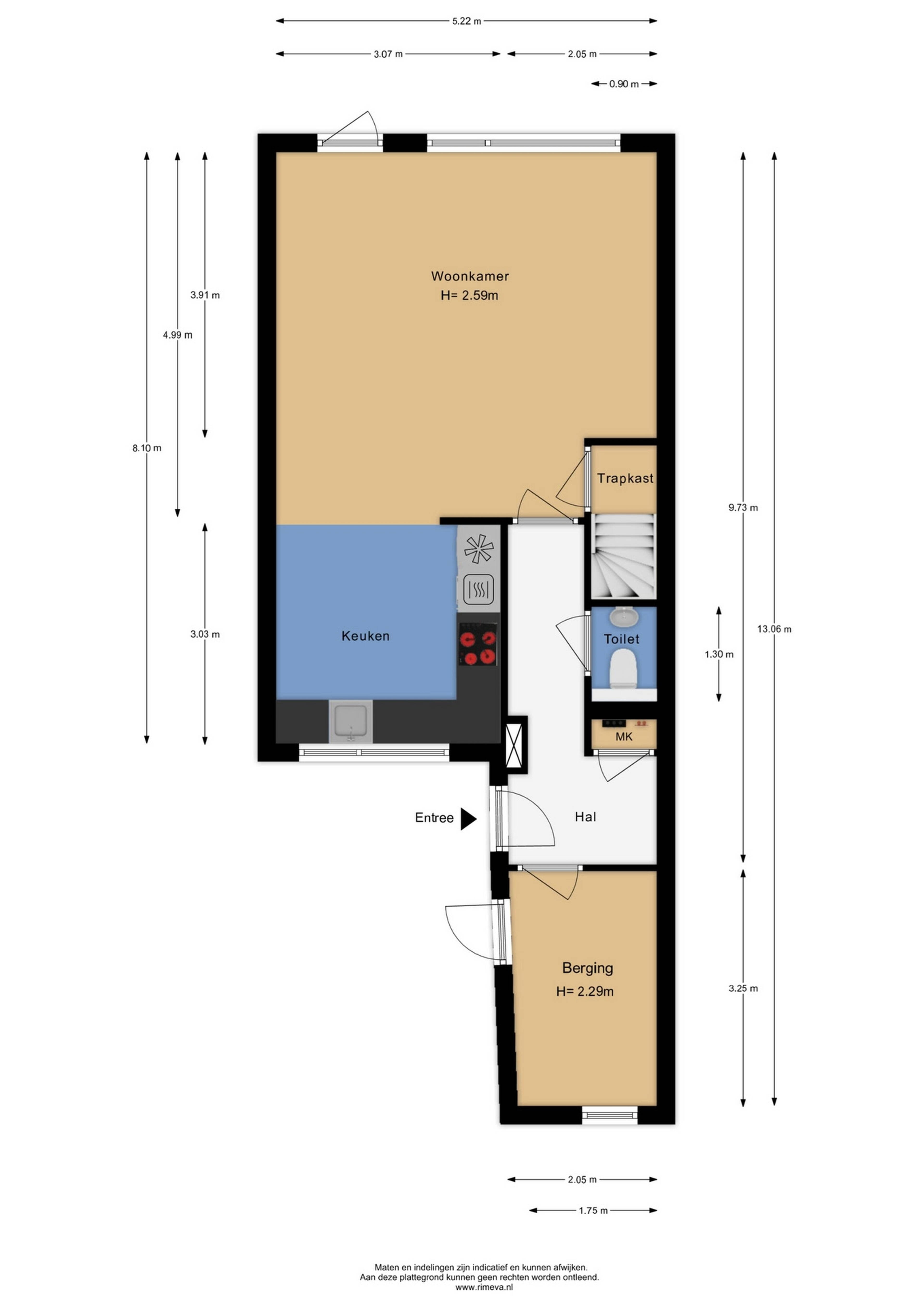
Begane grond:
Via de voortuin met oprit (plek voor 2 auto’s) en aangebouwde inpandige berging komt u in de hal van de woning met meterkast, modern toilet met fonteintje en trapopgang naar de eerste verdieping. De berging is ook vanuit de hal bereikbaar. Vanuit de hal heeft u toegang tot de royale en lichte L-vormige woonkamer met strak afgewerkte wanden. De moderne keuken is o.a. voorzien van een combi-oven, een koel-/vriescombinatie, een vaatwasser, een 4-pits gaskookstel en een afzuigkap. Het kozijn aan de voorzijde van de keuken is voorzien van geïntegreerde Luxaflex, waardoor stof zich niet ophoopt en schoonmaken nauwelijks nodig is.
De zonnige achtertuin op het noordoosten is mooi aangelegd en heeft een achterom.
Eerste verdieping:
Via de vaste trap komt u op de overloop van de eerste verdieping. Hier heeft u toegang tot drie ruime slaapkamers en de moderne badkamer. Eén van de slaapkamers aan de achterzijde van de woning is voorzien van een inbouwkast. De slaapkamer aan de voorzijde is ruim opgezet en heeft veel lichtinval. De volledig betegelde badkamer beschikt over een ruime inloopdouche, een wastafelmeubel, een toilet en een radiator. Tevens is de badkamer voorzien van een kozijn met een geïntegreerde luxaflex.
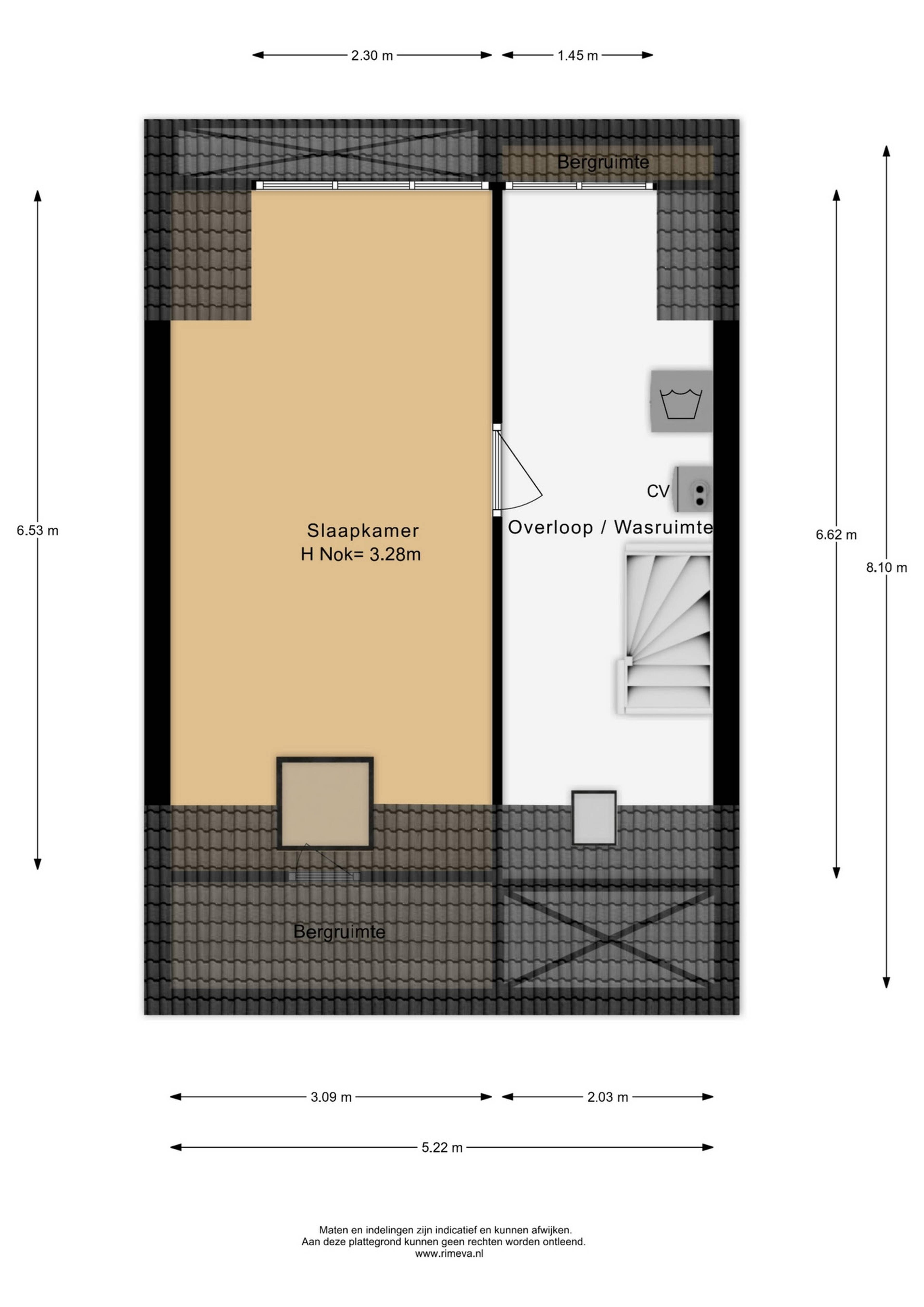
Tweede verdieping:
Zeer ruime overloop met knieschotten en opstelling voor wasmachine/droger en cv-ketel. De master bedroom heeft een extra grote dakkapel aan de achterzijde en een Velux dakraam aan de voorzijde, waardoor er veel ruimte en licht gecreëerd is. Deze slaapkamer is ook voorzien van knieschotten.
Bijzonderheden:
•Bouwjaar: 1977
•Gebruiksoppervlakte wonen ca. 117 m²
•Perceeloppervlakte 166 m²
•Aan een autoluw pad gelegen
•Overige inpandige ruimte (aangebouwde berging) ca. 6 m²
•Inhoud ca. 416 m³
•Voorbereiding laadpaal voor een elektrische auto is aangelegd
•10 zonnepanelen
•Geheel voorzien van nieuwe kunststof kozijnen
•Vaatwasser en oven uit 2023
•Instapklare woning
•Vloer-, muur- en dakisolatie
•Energielabel A
•Cv-ketel 2012
•Riolering vervangen door pvc
•Oplevering in overleg
Bij woningen ouder dan 30 jaar hanteren wij standaard een ouderdoms- en asbestclausule.