View
Information
Description
Licht, Ruimte en Comfort aan de Stadhouderslaan 90
Ben je op zoek naar een moderne, instapklare gezinswoning met luxe afwerking, licht en meer dan voldoende ruimte voor het hele gezin?
Welkom aan de Stadhouderslaan 90 in Zoeterwoude, gelegen in de populaire wijk VerdeVista Meerburg.
Deze ruime eengezinswoning combineert hedendaags wooncomfort met een groene, waterrijke omgeving vlakbij Leiden. Met een woonoppervlak van circa 151 m², een royale woonkamer met open keuken, vijf slaapkamers en een grote badkamer. Met een fijne voortuin met ochtendzon en zonnige achtertuin op het westen, biedt dit huis alles wat je zoekt.
Bijzonderheden:
- Bouwjaar: 2016
- Woonoppervlakte: ca. 151 m²
- Energielabel A
- Volledig geïsoleerd
- Royale woonkamer
- Moderne keuken met dubbele koelkast en vriezer
- Veel opbergmogelijkheden en een Quooker
- 5 slaapkamers
- Fijne badkamer met dubbele wastafel
- Grote en zonnige tuin op het westen
- Ruime berging
- Derde toilet en wastafel op de bovenste etage
- Sunscreens op de dakkapellen
- In 2024 buitenzijde volledig geschilderd
- Light tubes in de uitbouw
- Binnen 10 minuten fietsen van Leiden
- Goede verbinding met snelwegen en openbaar vervoer
Bewoners aan het woord
"De afgelopen vijf jaar hebben wij met veel plezier gewoond aan de Stadhouderslaan. Het is een hele fijne, gemoedelijke en groene buurt met alles dichtbij. Wij hebben daar genoten van onze kopjes koffie in de ochtendzon en gezellige etentjes in de tuin bij avondzon. Maar soms komt er onverwacht een kans voorbij die je niet zomaar kunt laten gaan. Wij kiezen ervoor om terug te gaan naar Leiderdorp, naar een woning waar wij een droom kunnen waarmaken: het starten van een Airbnb."
De locatie
De woning bevindt zich in het moderne en populaire VerdeVista Meerburg in Zoeterwoude-Rijndijk, een jonge wijk met veel groen, water en een rustige, kindvriendelijke sfeer. Dankzij de centrale ligging woon je hier ideaal: binnen 10 minuten fiets je naar het historische centrum van Leiden, en binnen 5 minuten rijd je de A4 of N11 op richting Den Haag, Rotterdam, Amsterdam of Utrecht. De Rijnland Route (N434) zorgt bovendien voor een nog snellere verbinding met de regio.
In de directe omgeving vind je sportvelden, speeltuinen, scholen, kinderopvang en supermarkten, alles wat je dagelijks nodig hebt ligt binnen handbereik. Voor ontspanning fiets of wandel je zo naar Park Cronesteyn of recreatiegebied de Vlietlanden. Ook het strand en de duinen zijn binnen 20 minuten te bereiken. Hier woon je comfortabel in het groen, met de stad en zijn voorzieningen vlakbij.
Begane grond
Bij binnenkomst voel je meteen de ruimtelijke sfeer van deze woning. De hal is licht en je vindt er een net en ruim toilet, maar ook de moderne meterkast. De uitbouw aan de achterzijde is voorzien van light tubes, waardoor er extra daglicht naar binnen valt en de ruimte nog meer open en uitnodigend aanvoelt. De woonkamer straalt comfort en stijl uit, met een houten vloer die in 2024 opnieuw in de lak is gezet, strak afgewerkte wanden en een sfeervolle haard. Middels openslaande deuren kom je in de zonnige achtertuin.
Aan de voorzijde bevindt zich de moderne open keuken. De keuken is volledig uitgerust met een koelvriescombinatie, extra koelkast en vriezer, luxe oven en een combimagnetron, Quooker, 4-pits gasfornuis en RVS-afzuigkap. Dankzij de slimme indeling en de handige trapkast is er bovendien volop opbergruimte.
Eerste verdieping
De eerste verdieping beschikt over drie ruime slaapkamers, elk voorzien van veel ramen die zorgen voor een lichte, open en uitnodigende sfeer. De kamers zijn netjes afgewerkt met een mooie laminaat vloer en voorzien van horren.
Eerste verdieping
Deze eerste etage beschikt over drie ruime slaapkamers, elk voorzien van veel ramen die zorgen voor een lichte, open en uitnodigende sfeer. De kamers zijn netjes afgewerkt met een mooie laminaat vloer en voorzien van horren.
De moderne badkamer is royaal opgezet en biedt volop comfort. Je vindt hier een inloopdouche, tweede toilet en een dubbel wastafelmeubel met praktische opbergruimte.
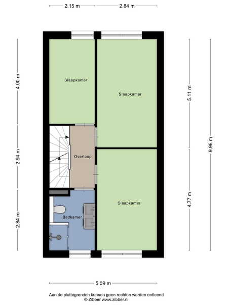
Tweede verdieping
De tweede verdieping beschikt over twee ruime slaapkamers. Beide kamers zijn voorzien van een dakkapel. Dankzij de dakkapellen valt er veel daglicht binnen, waardoor deze kamers ruimte en licht uitstralen. In beide kamers is ook veel opbergruimte te vinden doordat slim gebruik is gemaakt van de schuine wand onder de ramen.
Deze verdieping is uitgerust met sunscreens, horren en derde toilet met wastafel. Deze bevindt zich in de technische/wasruimte. Ook zijn hier de aansluiting van de cv-ketel, en was apparatuur. Deze ruimte is voorzien van een dakraam. Op de overloop vindt men een vliering die wederom zorgt voor extra opbergruimte.
Zonnige tuin op het westen
De achtertuin op het westen is een heerlijke plek om te ontspannen en te genieten van de middag- en avondzon. De tuin is sfeervol aangelegd met nette sierbestrating, groene borders en tuinverlichting, waardoor je ook in de avonduren gezellig buiten kunt zitten. Achterin staat een vrijstaande berging met elektra, ideaal voor het opbergen van fietsen of tuingereedschap. Aan de gevel van de woning is een praktische overkapping gemaakt, goed voor 2 fietsen of het opbergen van de barbecue. Daarnaast is de tuin bereikbaar via een achterom.
Deze informatie is met de nodige zorgvuldigheid samengesteld. Aanvaarding van enige aansprakelijkheid voor onvolledigheden, onjuistheden of anderszins, dan wel de gevolgen daarvan, wordt door ons niet aanvaard.
English text:
Light, Space and Comfort on Stadhouderslaan 90
Are you looking for a modern, move-in-ready family home with a luxurious finish, abundant light, and plenty of space for the whole family?
Welcome to Stadhouderslaan 90 in Zoeterwoude, located in the popular VerdeVista Meerburgneighborhood. This spacious family home combines contemporary living comfort with a green, water-rich environment close to Leiden. With a living area of approximately 151 m², a generous living room with open kitchen, five bedrooms, and a large bathroom, it offers everything you could wish for. The house also features a lovely front garden with morning sun and a sunny west-facing backyard, making it perfect for all-day enjoyment.
Key features:
- Year built: 2016
- Living area: approx. 151 m²
- Energy label A
- Fully insulated
- Spacious living room
- Modern kitchen with double refrigerator and freezer
- Plenty of storage and a Quooker
- 5 bedrooms
- Stylish bathroom with double washbasin
- Large, sunny west-facing garden
- Spacious storage shed
- Third toilet and washbasin on the top floor
- Sunscreens on the dormers
- Exterior completely repainted in 2024
- Light tubes in the rear extension
- Only 10 minutes by bike to Leiden
- Excellent access to highways and public transport
Location
The house is located in VerdeVista Meerburg, a modern and popular district in Zoeterwoude-Rijndijk. This young neighborhood offers plenty of greenery, water, and a peaceful, child-friendly atmosphere. Thanks to its central location, you’ll live ideally here , just 10 minutes by bike from Leiden’s historic city center, and only 5 minutes by car to the A4 or N11 towards The Hague, Rotterdam, Amsterdam, or Utrecht. The Rijnland Route (N434) ensures even faster regional connections. Nearby you’ll find sports fields, playgrounds, schools, daycare centers, and supermarkets, everything you need on a daily basis. For relaxation, you can cycle or walk to Park Cronesteyn or recreational area De Vlietlanden. The beach and dunes are also within 20 minutes’ reach. Here, you enjoy the perfect balance of comfort, nature, and proximity to the city.
Ground Floor
Upon entering, you immediately feel the spacious atmosphere of this home. The hallway is bright and features a neatly finished guest toilet and a modern utility cabinet. The rear extension is equipped with light tubes, allowing extra daylight to flow in and making the space feel open and inviting. The living room exudes comfort and style, with a wooden floor (freshly varnished in 2024), smooth walls, and a cozy fireplace. French doors open onto the sunny backyard. At the front of the house, you’ll find the modern open kitchen, fully equipped with a fridge-freezer combination, additional refrigerator and freezer, luxury oven, combination microwave, Quooker, 4-burner gas stove, and stainless steel extractor hood. The smart layout and built-in storage under the stairs provide ample storage space.
First Floor
The first floor offers three spacious bedrooms, each with large windows that create a light, open, and welcoming atmosphere. The rooms are neatly finished with laminate flooring and fitted with insect screens. The modern bathroom is generously sized and offers excellent comfort, featuring a walk-in shower, a second toilet, and a double vanity unit with convenient storage.
Second Floor
The top floor has two spacious bedrooms, both with dormer windows that let in plenty of natural light, creating a bright and airy feel. Both rooms also offer ample storage space cleverly integrated under the slanted ceilings. This floor includes sunscreens, insect screens, and a third toilet with washbasin, located in the technical/laundry room. Here you’ll also find the central heating system and connections for laundry appliances. A skylight brings in extra daylight, and a loft above the landing provides even more storage space.
This information has been compiled with great care. However, no liability is accepted for any incompleteness, inaccuracies, or the consequences thereof.
Specifications
Address
2382 BV Zoeterwoude
Price
Details
Layout
Garden
Garage
Bergruimte
Energy rating
Your estate agent
Jimmy van Delft
Interested in this property? We will gladly contact you. Fill in this form for a viewing of this property or for more information. We will contact you as soon as possible.






