See English text below
Aan de geliefde Rijn en Schiekade gelegen dubbele bovenwoning met een balkon aan de voorzijde en een dakterras aan de achterzijde. Deze karakteristieke woning met veel originele details dient volledig te worden gemoderniseerd en is daardoor naar geheel eigen wens en smaak in te richten. Een toplocatie met prachtig uitzicht over het water en de parkachtige omgeving met de vele bomen en het groen.
De Rijn en Schiekade ligt op loopafstand van de historische binnenstad met de vele gezellige winkels, terrasjes, musea en restaurants. Het Centraal Station Leiden ligt om de hoek en het complex ligt naast universiteitsbibliotheek. Tevens centraal gelegen ten opzichte van uitvalswegen (A4/A44) richting Amsterdam, Den Haag en Utrecht( N11 of ).
Bekijk ook de bezichtigingsvideo!
Indeling:
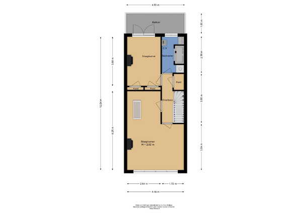
Begane grond:
Via eigen pad bereik je de entree met ruime hal en trapopgang naar de eerste verdieping.
1e verdieping:
Overloop met toegang tot de woonkamer, eetkamer, toilet en een ruime vaste kast. De royale en lichte woonkamer aan de voorzijde kenmerkt zich door prachtige authentieke hoge ramen, een hoog plafond en een sfeervolle schouw. Via openslaande deuren bereik je het ronde balkon met origineel hekwerk, waar je volop kunt genieten van het mooie uitzicht op de groene omgeving en het water.
De woonkamer staat middels dubbele en-suitedeuren, voorzien van meerdere vaste originele kasten, in verbinding met het tweede gedeelte van de woonkamer. Hier is eenvoudig een fraaie eetkamer te realiseren. Vanuit deze ruimte geven de en-suitedeuren toegang tot een extra kamer/serre met uitzicht op de groene omgeving. De gesloten keuken bevindt zich eveneens aan de achterzijde van de woning.
Zowel in de woonkamer aan de voorzijde als achterzijde bevind zich een schouw met gaskachel.
2de verdieping
Royale en lichte overloop met dakraam, die via twee deuren toegang biedt tot een zeer ruime en zonnige (slaap)kamer aan de voorzijde (voorheen twee kamers). Ook hier zorgen de hoge plafonds en grote ramen voor een prachtige lichtinval. De kamer beschikt daarnaast over een karakteristieke schouw met kachel en een extra dakraam.
Aan de achterzijde bevindt zich nog een (slaap)kamer met een originele schouw. Via openslaande deuren is er toegang tot het royale balkon/dakterras, waar je heerlijk kunt genieten van de middag- en avondzon en het fraaie uitzicht.
De badkamer is voorzien van een moderne, ruime douchecabine en een wastafel. Tevens bevindt zich hier de aansluiting voor de wasmachine.
Bijzonderheden:
-Bouwjaar 1906
-De wijk is beschermd stadsgezicht en het pand is beeldbepalend
-Woning dient volledig te worden gerenoveerd
-Woonoppervlak 106m2
-Gebouw gebonden buitenruimte 8m2 (balkons)
-Inhoud 388m3
-Dak in 2020 vernieuwd en geïsoleerd
-CV bouwjaar 2026, merk Nefit Proline NxT HRC24 CW
-Meterkast 3 groepen (smelt)
-Energielabel D
- De benedenburen hebben 4 zonnepanelen op het gezamenlijke dak
-VvE, bijdrage: € 150,-- per maand (reservering voor [groot] onderhoud aan casco en opstalverzekering)
-Parkeervergunning € 61,-- per jaar
-Oplevering in overleg
Bij woningen ouder dan 30 jaar hanteren wij standaard een ouderdoms- en asbestclausule. Een niet bewoningsclausule is van toepassing.
_________________________________________________________
Beautiful double upper-level apartment located on the beloved Rijn and Schiekade, featuring a front balcony and a roof terrace at the rear. This characteristic property, rich in original details, requires complete modernization, offering the opportunity to renovate entirely according to your own wishes and taste. A prime location with stunning views over the water and the park-like surroundings with many trees and greenery.
Rijn and Schiekade is within walking distance of the historic city center, with its many charming shops, cafés, museums, and restaurants. Leiden Centraal Station is just around the corner, and the property is located next to the university library. The location is also conveniently situated near major highways (A4/A44) towards Amsterdam, The Hague, and Utrecht (via N11).
Be sure to watch the viewing video!
Layout
Ground floor:
Private entrance via your own path leading to a spacious hallway with staircase to the first floor.
First floor:
Landing with access to the living room, dining room, toilet, and a large built-in storage cupboard. The generous and bright living room at the front is characterized by beautiful authentic high windows, high ceilings, and an attractive fireplace mantel. French doors open onto the rounded balcony with original railings, where you can fully enjoy the lovely views of the green surroundings and the water.
The living room connects through double en-suite doors, featuring several original built-in cupboards, to the second section of the living room. This space can easily be transformed into a beautiful dining room. From here, en-suite doors provide access to an additional room/conservatory overlooking the greenery. The closed kitchen is also located at the rear of the property.
Both the front and rear living rooms feature a fireplace with a gas heater.
Second floor:
Spacious and bright landing with a skylight, providing access through two doors to a very large and sunny (bed)room at the front (formerly two rooms). Here too, the high ceilings and large windows create wonderful natural light. The room also features a characteristic fireplace mantel with stove and an additional skylight.
At the rear, there is another (bed)room with an original fireplace mantel. French doors provide access to the generous balcony/roof terrace, where you can enjoy the afternoon and evening sun and the attractive views.
The bathroom is equipped with a modern, spacious shower cabin and a washbasin. The washing machine connection is also located here.
Special features:
Built in 1906
Located in a protected cityscape district; the building is considered architecturally significant
Property requires full renovation
Living area: 106 m²
Building-related outdoor space: 8 m² (balconies)
Volume: 388 m³
Roof renewed and insulated in 2020
Central heating boiler (2026), Nefit Proline NxT HRC24 CW
Electrical panel: 3 groups (fuse type)
Energy label D
The downstairs neighbors have 4 solar panels on the shared roof
Homeowners’ association (VvE) contribution: €150 per month (reservation for major maintenance of the structure and building insurance)
Parking permit: €61 per year
Transfer date in consultation
For properties older than 30 years, an age clause and asbestos clause are standard. A non-occupancy clause applies.