Narmstraat 6-A – Leiden
Algemeen
In het hart van de historische binnenstad van Leiden ligt dit sfeervolle en karakteristieke 2-kamerappartement van ruim 59 m², gelegen op de begane grond van een voormalig pakhuis (bouwjaar 1901). Het meetrapport geeft 43m2 aan, omdat de slaapkamer als overige inpandig ruimte wordt aangeduid door het ontbreken van een raam in de slaapkamer. Gelukkig wordt de ruimte goed geventileerd met mechanische ventilatie voor comfortabele lucht verversing.
De woning is in 2023 gerenoveerd en verkeert in nette, instapklare staat. Met een royale woonkamer, slaapkamer, een moderne keuken en badkamer is dit een ideale woning voor starters, young professionals of een stel dat comfortabel wil wonen midden in de stad.
De combinatie van historische charme en hedendaags wooncomfort maakt dit appartement bijzonder aantrekkelijk.
De VVE van de woning is ingeschreven in de KvK en voorzien van opstalverzekering. Er heeft een technische keuring plaatsgevonden, waarbij een aanvullend rapport gemaakt is vooruitlopend op een MJOP van het gebouw. Beide rapportages laten zien dat het appartement in goede staat van onderhoud verkeerd.
Omgeving
De Narmstraat is rustig gelegen, midden in het prachtige en bruisende centrum van Leiden. Hier woont u op loopafstand van werkelijk alle voorzieningen: supermarkten, speciaalzaken, horeca, musea en gezellige terrassen.
Ook het Centraal Station van Leiden ligt op korte afstand (ca. 0,9 km), evenals diverse uitvalswegen richting Den Haag, Amsterdam en de A4/A44.
De woning bevindt zich in het noordelijke deel van de Leidse binnenstad, een gebied dat bekend staat om zijn historische karakter, grachten, hofjes en levendige sfeer. De Haarlemmerstraat – de langste winkelstraat van Nederland – ligt praktisch om de hoek.
Hier woont u midden in de stad, maar toch in een rustige straat.
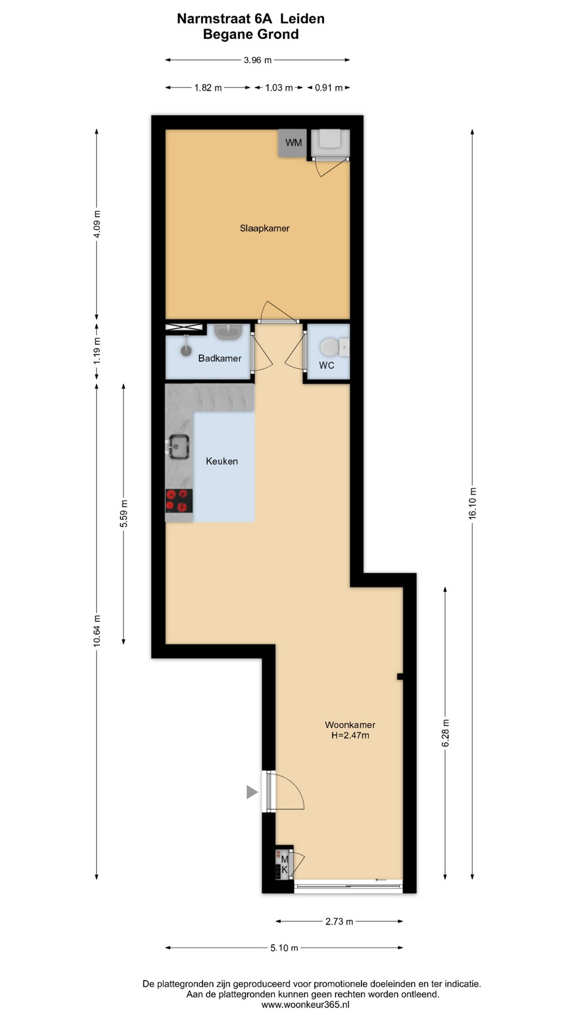
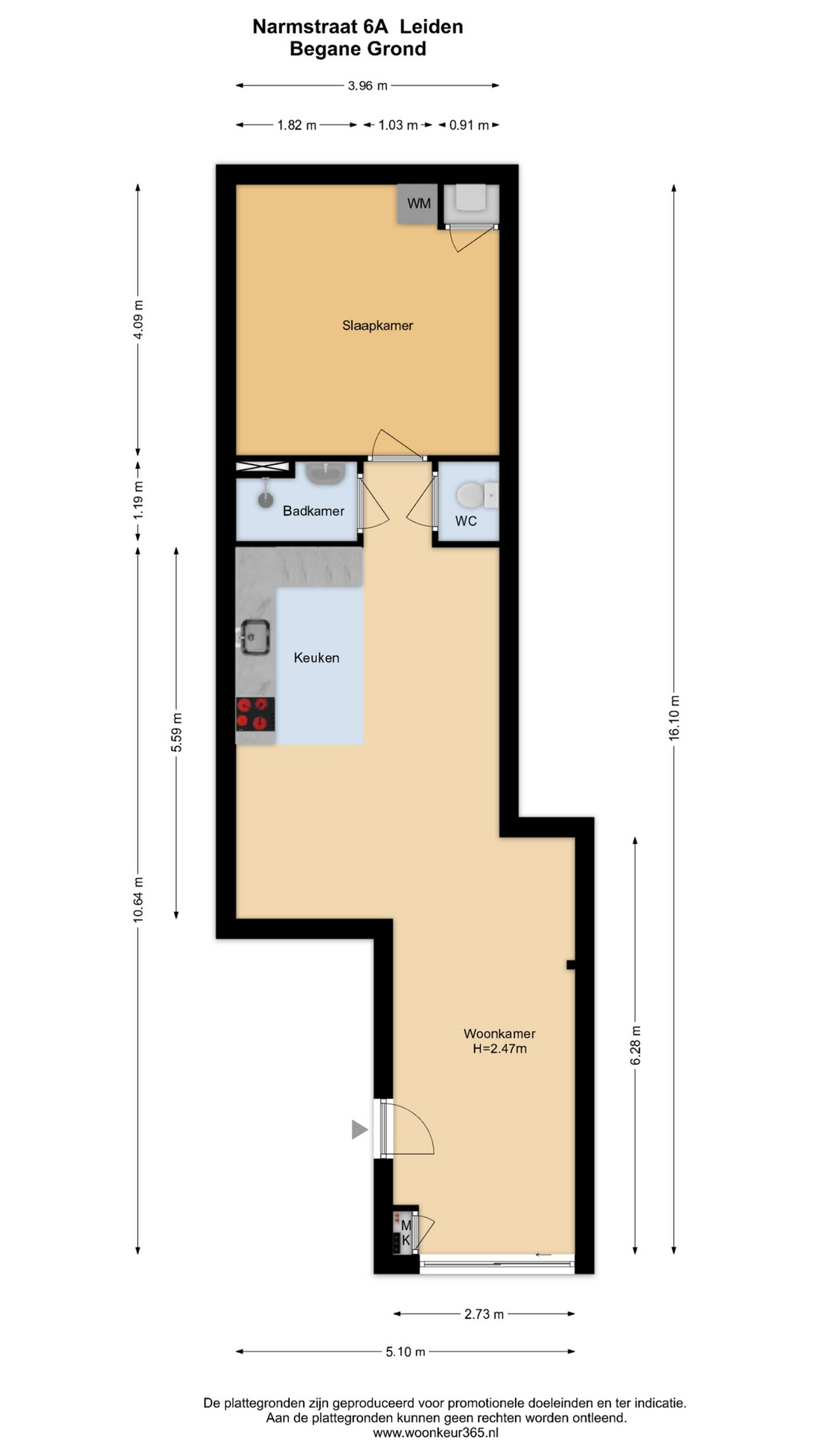
Indeling
Via de gemeenschappelijke entree bereikt u het appartement op de begane grond.
De royale woonkamer met open leefkeuken vormt het hart van de woning. Dankzij de praktische indeling is er voldoende ruimte voor zowel een comfortabele zithoek als een eethoek. De moderne keuken (vernieuwd in 2023) is voorzien van diverse inbouwapparatuur.
De slaapkamer is ruim en prettig van formaat.
De badkamer is modern uitgevoerd en beschikt over een inloop douche en wastafel. Daarnaast is er een separaat toilet aanwezig.
De woning is in 2024 van een nieuwe tegelvloer) en wordt verwarmd middels een Remeha C.V.-ketel.
Bijzonderheden
- Gelegen in het centrum van Leiden
- Bouwjaar 1906
- Woning van 59 m², gebruiksoppervlakte van 43 m² + een overige inpandige ruimte van 16 m², die als slaapkamer wordt gebruikt
- 2 kamers
- Begane grond appartement
- Keuken vernieuwd in 2023
- Energielabel A
- Voorzien dubbel HR++ glas
- Gelegen op eigen grond
- Oplevering in overleg, kan snel
- Recent opgericht VVE, is ingeschreven in KvK
- Bouwtechnische keuring aanwezig