Licht en verzorgd 4-kamer hoekappartement op de bovenste verdieping met ruim balkon en prachtig uitzicht
Nabij het centrum van Leiden ligt dit ruime en goed onderhouden 4-kamer hoekappartement van circa 70 m². De woning bevindt zich op de bovenste verdieping van het complex en beschikt over een zonnig balkon, een eigen berging en een vrij, weids uitzicht over de binnenstad.
Dankzij de hoekligging profiteert het appartement van extra lichtinval, veel privacy en een ruimtelijk gevoel. De woning heeft een moderne uitstraling en is de afgelopen jaren op diverse punten vernieuwd, waaronder de badkamer (2025), het toilet (2026) en alle binnendeuren. Daarnaast is het appartement volledig geïsoleerd en voorzien van energielabel A.
Indeling
De verzorgde centrale entree beschikt over een hal met brievenbussen, bellentableau en liftinstallatie. Rondom het complex bevindt zich een ruim parkeerterrein met voldoende parkeergelegenheid. Op de begane grond beschikt het appartement over een eigen berging, ideaal voor fietsen en extra opslag. Tevens is er een huismeester aanwezig.
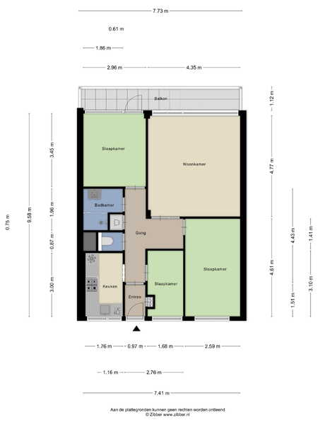
Het appartement, gelegen aan het Jacques Urlusplantsoen 390, bevindt zich op de bovenste etage. Via de hal met meterkast heeft u toegang tot alle vertrekken.
De lichte woonkamer biedt volop ruimte voor zowel een comfortabele zithoek als een royale eethoek en kenmerkt zich door de grote raampartijen en het vrije uitzicht.
De moderne keuken is praktisch ingericht en voorzien van diverse inbouwapparatuur, waaronder een vaatwasser, waardoor koken hier bijzonder comfortabel is.
De badkamer beschikt over een ruime douche en een wastafel met meubel. Het separate toilet is recent vernieuwd en uitgevoerd in een frisse, moderne stijl.
Het appartement telt drie slaapkamers. Aan de voorzijde bevinden zich twee kamers. De derde slaapkamer ligt aan de achterzijde en biedt directe toegang tot het balkon. Het balkon strekt zich uit over de volledige breedte van de woning en is gelegen op het oosten, waardoor u hier heerlijk kunt genieten van de ochtend- en middagzon. De kozijnen aan de balkonzijde zijn uitgevoerd in onderhoudsvriendelijk kunststof.
De gerenoveerde binnendeuren dragen bij aan de moderne en verzorgde uitstraling van het geheel.
Ligging en woonomgeving
Het appartementencomplex ligt op slechts vijf minuten fietsen van het centrum van Leiden. In de directe omgeving vindt u scholen, sport- en recreatievoorzieningen en openbaar vervoer. Winkelcentrum De Luifelbaan ligt op loopafstand en ook de uitvalswegen A4, A44, N206 en N11 zijn snel bereikbaar.
De Vereniging van Eigenaren heeft de afgelopen jaren fors geïnvesteerd in onderhoud en verduurzaming, waaronder:
•Volledige isolatie
•Warmtepompinstallatie
•Asbestsanering
•Nieuwe liften
•Volledig dubbel glas
•Geplande plaatsing van zonnepanelen in de komende jaren
Bijzonderheden
•Gelegen op de bovenste verdieping
•Hoekappartement met veel lichtinval
•Energielabel A
•Zonnig balkon met vrij uitzicht
•Drie slaapkamers
•Nieuw toilet (2026)
•Alle binnendeuren vernieuwd
•Moderne keuken met inbouwapparatuur
•Eigen berging op de begane grond
•Voldoende parkeergelegenheid
•Nabij centrum, winkels en uitvalswegen
•Goed bereikbaar met openbaar vervoer
•Kunststof kozijnen aan balkonzijde
•Actieve en gezonde VvE, bijdrage € 293,35 p/m (incl. € 70 voorschot stookkosten)
•Oplevering: eerste twee weken van juli