English text see below
Zeer modern, licht en royaal 3-kamerappartement met een hoogwaardige afwerking, gelegen in het stijlvolle woonproject De Ananas. Dit luxe complex bevindt zich op een unieke locatie aan de rand van het levendige Leiden, waar comfort, duurzaamheid en het stadsleven naadloos samenkomen. Op slechts enkele minuten fietsen ligt het charmante historische centrum met zijn gezellige terrassen, winkels en restaurants, terwijl je thuis geniet van rust en ruimte, met het groene Park Cronesteyn praktisch om de hoek. Duurzaam en comfortabel wonen!
Het ruime 3-kamerappartement is gelegen op de derde verdieping en biedt een fraai uitzicht over groen, met in de verte de Petruskerk. De woning beschikt over een luxe uitgevoerde keuken, een moderne badkamer, een loggia, een inpandige berging/technische ruimte en een externe inpandige berging (huur). Daarnaast is er een eigen plek in de gezamenlijke fietsenstalling voor twee fietsen. Het gehele complex is volledig gasloos, voorzien van een duurzaam warmtepompsysteem (WTW) en gerealiseerd met veel aandacht voor duurzaamheid.
Bekijk ook de bezichtigingsvideo!
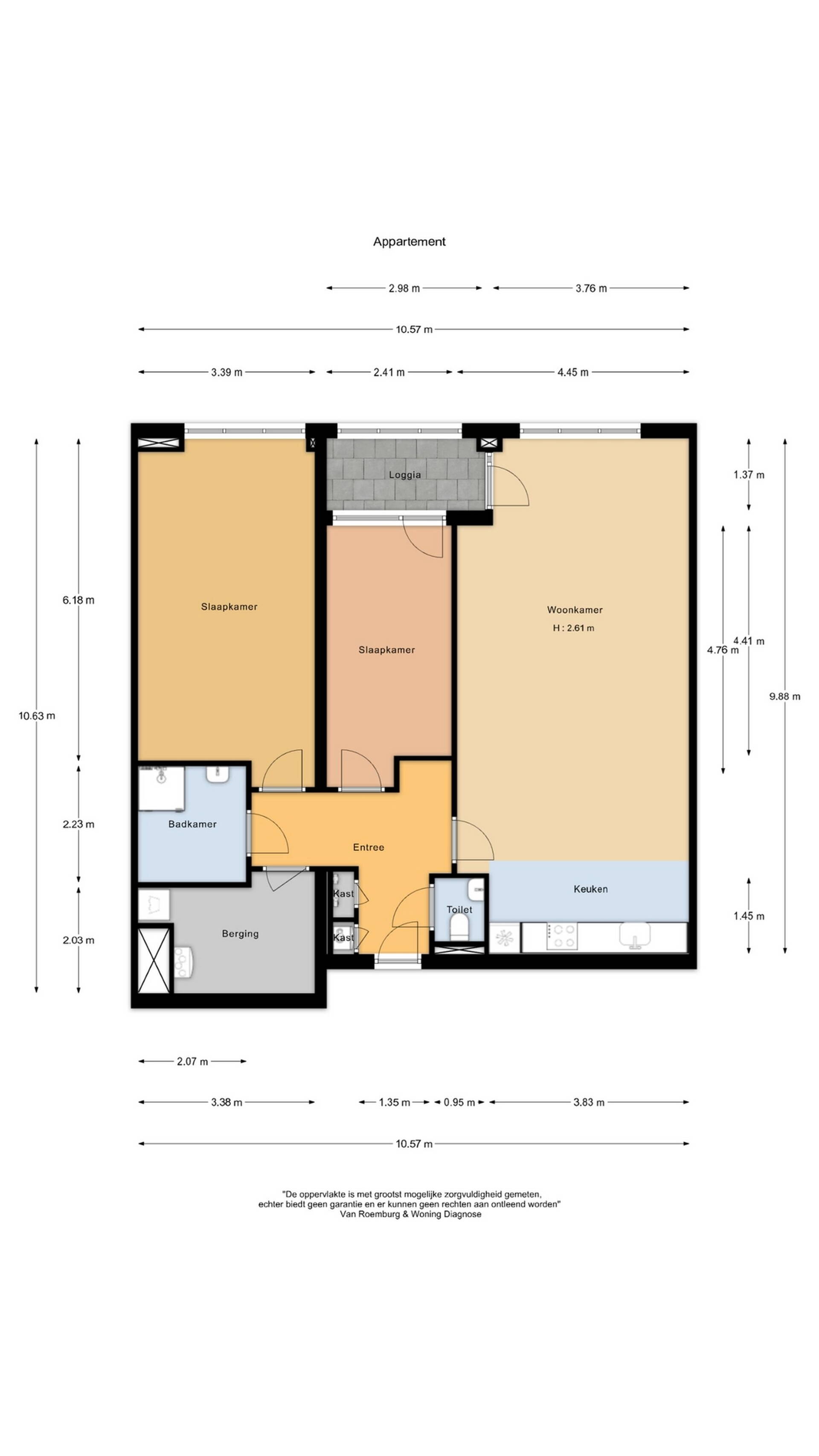
Indeling:
Ontvangstportaal met video-intercom, lift en trappenhuis.
3e woonlaag:
Ruime hal met toegang tot alle ruimtes. De zeer ruime woonkamer heeft een open grote luxe keuken met diverse inbouwapparatuur zoals o.a. een inductiekookplaat met ingebouwde afzuiging, combi oven/magnetron, vaatwasser en koelkast.
Vanuit de woonkamer is het gezellige balkon/loggia bereikbaar waar je het hele jaar door comfortabel kan zitten. De twee slaapkamers grenzen aan de loggia waarvan er één zo ruim is dat daar, naast het slaapgedeelte, bijvoorbeeld ook nog een werkplek of kleedruimte kan worden gecreëerd. De ruime moderne badkamer beschikt over een inloopdouche, een wastafel met daarboven een spiegelkast, mechanische ventilatie en een designradiator. In de hal bevindt zich een separaat modern toilet met fonteintje. Ook is er nog een inpandige berging/technische ruimte waarin, naast extra bergruimte, de technische installatie zich bevindt voor de WTW en de wasopstelling.
Het gehele appartement is afgewerkt met een fraaie pvc-vloer en voorzien van vloerverwarming en -koeling, wat zorgt voor een comfortabel en energiezuinig binnenklimaat, het hele jaar door.
Bijzonderheden woning:
- Bouwjaar 2022
- Woonoppervlakte 100m2
- Inhoud 319m3
- Gebouwgebonden buitenruimte 4m2 (balkon/loggia)
- Externe bergruimte 6m2 (technische ruimte). Daarnaast een berging op de 1ste etage van 14m2 (huur)
- Energielabel A
- Moderne meterkast met 7 groepen
- Het complex is voorzien van een warmtepompinstallatie. Voor de warmtepomp is een
servicecontract met de leverancier (Enera) afgesloten (€ 129,-- per maand inclusief voorschot vloerverwarming en warm water).
- Servicekosten per maand bedragen € 130,--.
- Kosten huren (verplicht) van de bijbehorende berging (BG), ter grootte van € 20,-- per maand
(inclusief elektra)
- Mogelijkheid huren parkeerplaats in de garage van De Ananas € 60,-- per maand
- Oplevering in overleg
------------------------------------------------------------------------------------------------------------------------
Very modern, bright, and spacious 2-bedroom apartment with a high-quality finish, located in the stylish residential project De Ananas. This luxurious complex is situated in a unique location on the edge of vibrant Leiden, where comfort, sustainability, and city life come together seamlessly. Just a few minutes by bike lies the charming historic city center with its cozy terraces, shops, and restaurants, while at home you can enjoy peace and space, with the green Park Cronesteyn practically around the corner. Sustainable and comfortable living!
The spacious apartment is located on the third floor and offers a beautiful view over greenery, with the Petrus Church visible in the distance. The property features a luxuriously finished kitchen, a modern bathroom, a loggia, an internal storage/technical room, and an external indoor storage unit (rental). In addition, there is a private space in the shared bicycle storage for two bikes. The entire complex is completely gas-free, equipped with a sustainable heat pump system (heat recovery system - HRV/WTW), and built with great attention to sustainability.
Also watch the viewing video!
Layout:
Entrance hall with video intercom, elevator, and staircase.
3rd floor:
Spacious hallway with access to all rooms. The very large living room has an open, luxurious kitchen equipped with various built-in appliances, including an induction hob with integrated extraction, combi oven/microwave, dishwasher, and refrigerator.
From the living room, you can access the cozy balcony/loggia where you can sit comfortably all year round. The two bedrooms adjoin the loggia, one of which is spacious enough to accommodate not only a sleeping area but also, for example, a workspace or dressing area. The large modern bathroom features a walk-in shower, a washbasin with a mirrored cabinet above, mechanical ventilation, and a designer radiator. In the hallway, there is a separate modern toilet with a small sink. There is also an internal storage/technical room, which, in addition to extra storage space, houses the technical installation for the heat recovery system and the laundry setup.
The entire apartment is finished with a beautiful PVC floor and equipped with underfloor heating and cooling, ensuring a comfortable and energy-efficient indoor climate all year round.
Property details:
- Year of construction: 2022
- Living area: 100 m²
- Volume: 319 m³
- Building-related outdoor space: 4 m² (balcony/loggia)
- External storage space: 6 m² (technical room), plus an additional storage unit on the 1st floor of 14 m² (rental)
- Energy label A
- Modern electrical panel with 7 circuits
- The complex is equipped with a heat pump installation. A service contract has been concluded with the supplier (Enera) (€129 per month, including advance payment for underfloor heating and hot water)
- Monthly service charges: €130
- Mandatory rental cost for the associated ground-floor storage unit: €20 per month (including electricity)
- Option to rent a parking space in the De Ananas garage: €60 per month
- Delivery in consultation