Op een aantrekkelijke locatie in de populaire wijk Groenoord ligt deze charmante benedenwoning in een karakteristiek pand uit het begin van de 20e eeuw. De woning beschikt over een lichte woonkamer, een open keuken, een knusse slaapkamer en een prettige patio. Een fijne plek voor starters, young professionals of expats die op zoek zijn naar comfortabel wonen dichtbij het centrum.
De ligging is bijzonder gunstig. Het historische centrum van Leiden en Leiden Centraal Station zijn binnen enkele minuten per fiets bereikbaar. In de directe omgeving bevinden zich diverse winkels, supermarkten, horeca en sportvoorzieningen. Ook zijn er in de buurt meerdere parken en recreatiemogelijkheden voor een wandeling of een moment van ontspanning. Daarnaast zijn uitvalswegen richting onder andere Den Haag, Amsterdam en Schiphol eenvoudig bereikbaar.
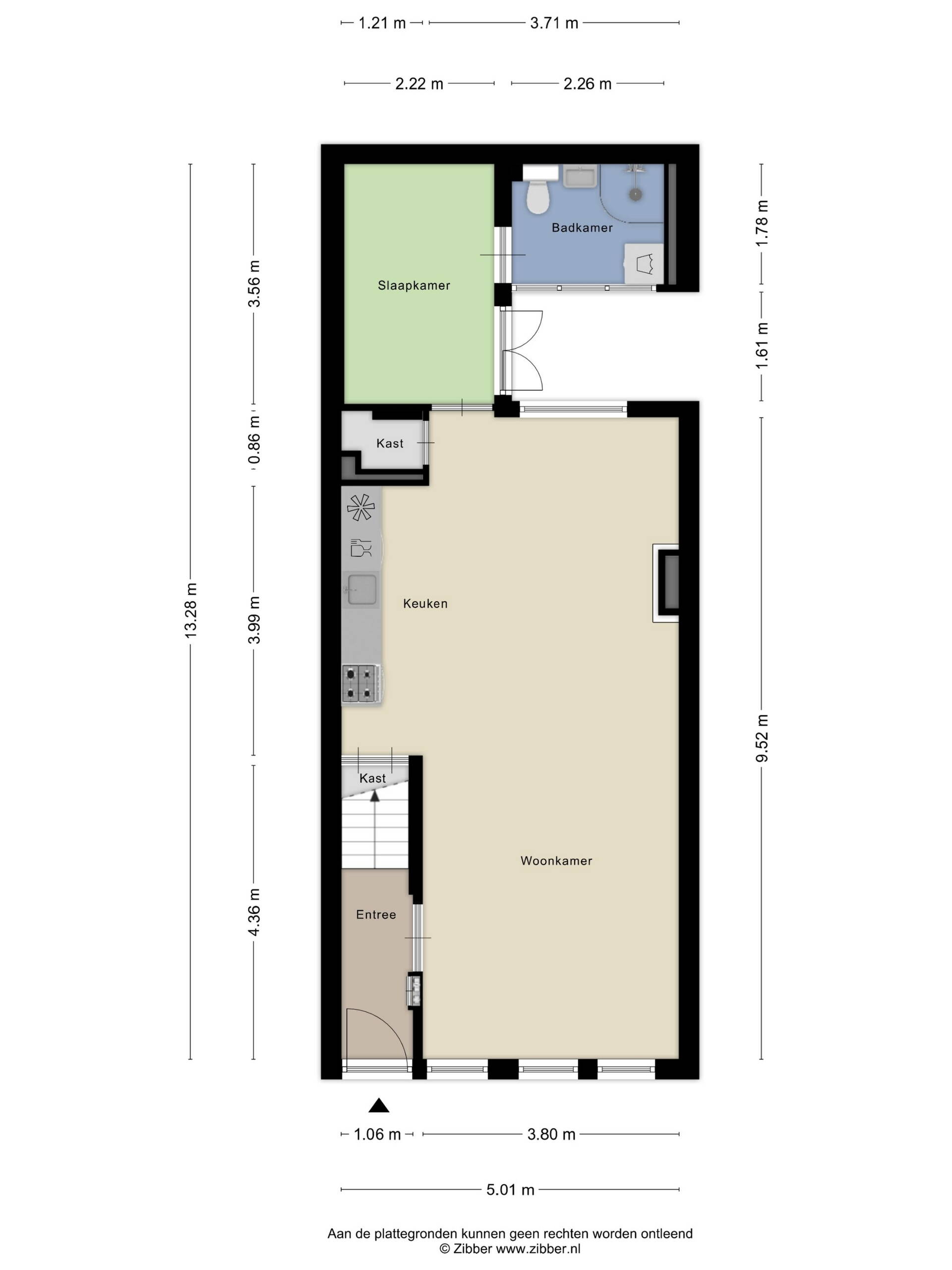
Indeling
Via de gemeenschappelijke entree wordt het gebouw betreden en is de woning bereikbaar.
Bij binnenkomst komt de woonkamer direct in beeld. Dankzij het hoge plafond en de grote raampartijen voelt deze ruimte licht en ruim aan. De woonkamer staat in open verbinding met de moderne keuken, waardoor een prettige leefruimte ontstaat waar wonen en koken mooi samenkomen. De moderne keuken is onder andere voorzien van een vaatwasmachine, koel-vriescombinatie, oven, afzuigkap en voldoende bergruimte. Daarnaast bevindt zich naast de keuken een praktische trappenkast en is er aan de rechterzijde van de keuken een ruime berging.
Via een verbindingshal zijn de slaapkamer en patio te bereiken. De slaapkamer biedt plaats voor een tweepersoonsbed en kastruimte en geeft direct toegang tot de aangrenzende badkamer. Deze is praktisch ingericht met een douche, wastafelmeubel, toilet en biedt tevens een opstelplaats voor de wasmachine.
Bijzonderheden
• Energielabel C
• Recent opgerichte VvE
• Gesplitst in appartementsrechten in 2024
• VvE-bijdrage €158,51 per maand (inclusief internet, tv, water, gas en elektra)
• Niet-bewonersclausule van toepassing
• Bij woningen ouder dan 25 jaar hanteren wij standaard een ouderdoms- en asbestclausule
• Oplevering in overleg, kan snel