English text below:
Licht 4-kamerappartement met zonnig balkon in de Professorenwijk
Aan de Burggravenlaan in Leiden ligt dit verzorgde en lichte appartement op de derde verdieping van een karakteristiek jaren ’50-complex. De woning biedt een ruime en sfeervolle woonkamer met open keuken, drie slaapkamers en een compacte maar functionele badkamer. Vanuit de woonkamer stap je zo het royale balkon op het zuiden op, waar je de hele dag door heerlijk van de zon kunt genieten. In de onderbouw bevinden zich daarnaast twee praktische bergingen.
Bijzonderheden:
•Bouwjaar:1958
•Woonoppervlakte: ca. 77 m²
•Energielabel F
•Ruime woonkamer met open keuken
•Functionele badkamer
•Groot balkon op het zuiden
•2 bergingen in het souterrain
•Eigen cv-ketel
•Actieve VvE met een maandelijkse bijdrage van €165,-
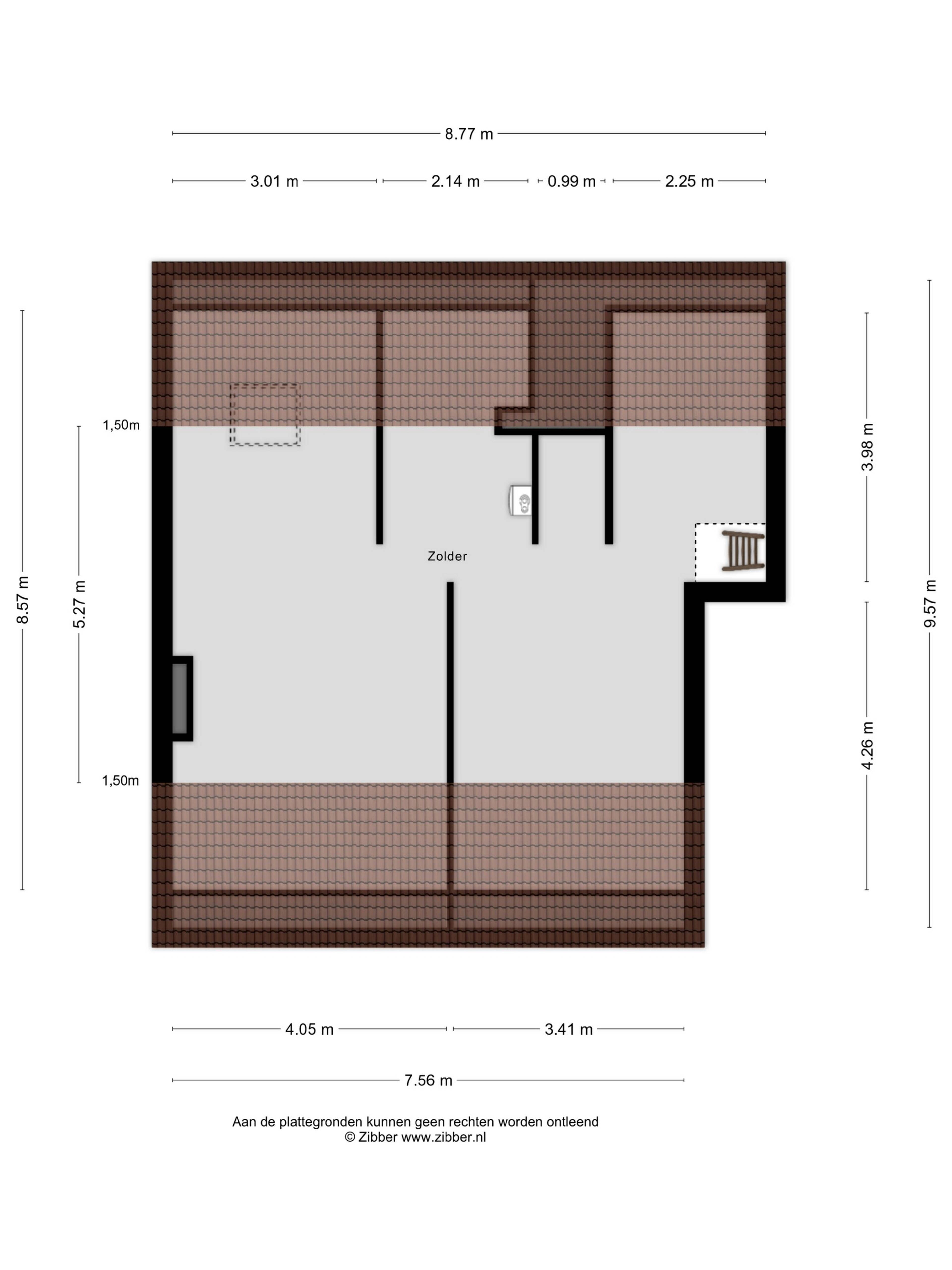
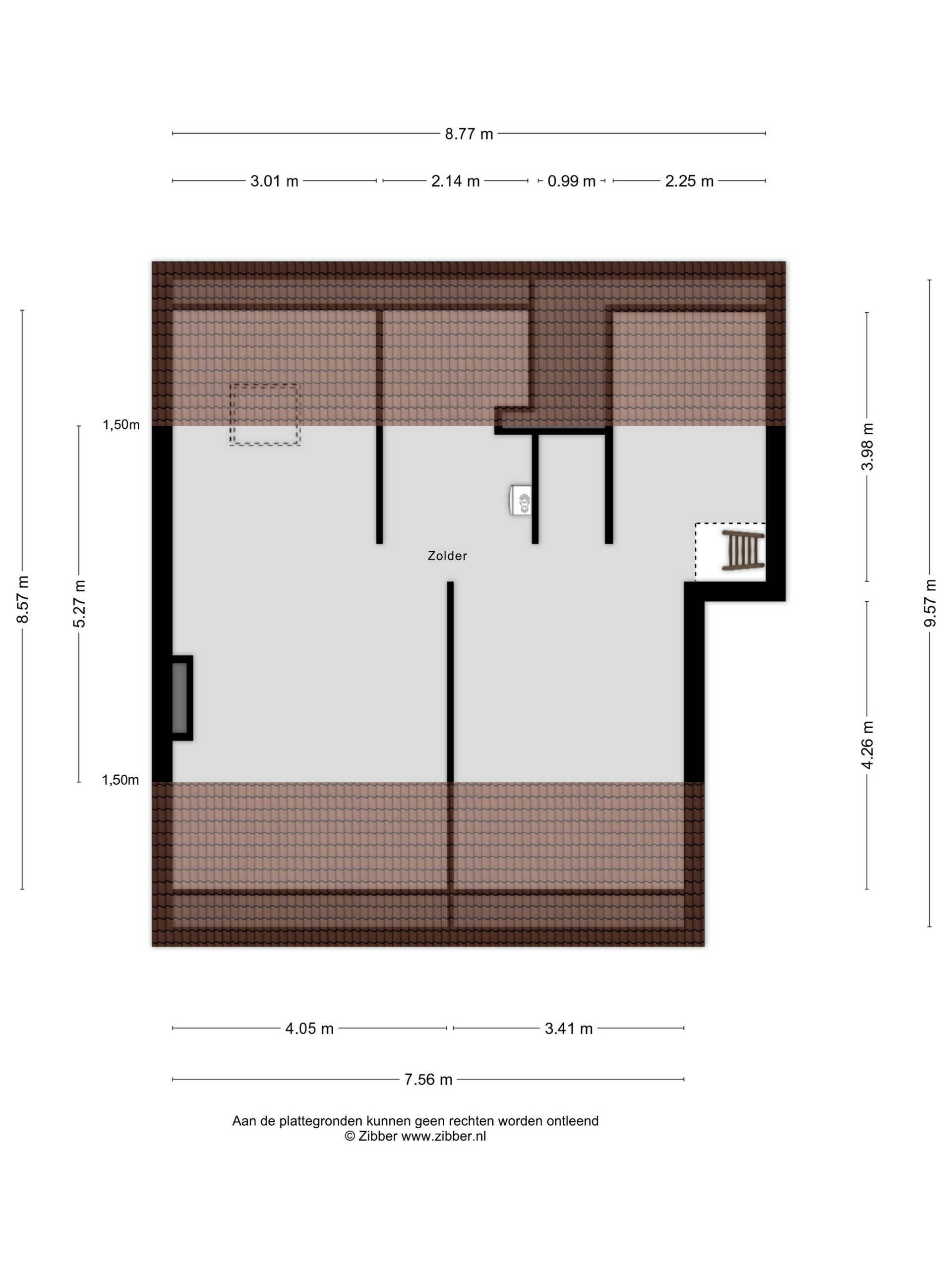
•Mogelijkheid tot aankoop van de zolderetage van ca. 43 m²
•Dichtbij openbaar vervoer en uitvalswegen
•Binnen 10 minuten fietsen van het centrum van Leiden
Ligging
Dit appartement ligt in de populaire Professorenwijk-Oost, een buurt waar je al snel begrijpt waarom mensen hier zo graag wonen. De wijk heeft een rustige, groene uitstraling met mooie lanen en een prettige, bijna dorpse sfeer, terwijl je toch midden in de stad zit. Alles wat je nodig hebt ligt dichtbij. Voor je dagelijkse boodschappen, een rondje hardlopen of een middagje ontspannen in het groen hoef je de wijk nauwelijks uit. Tegelijkertijd is er altijd levendigheid in de buurt, waardoor het nooit saai aanvoelt. Ook de bereikbaarheid is ideaal. Station Leiden Lammenschans ligt op korte afstand en brengt je snel richting andere steden. En heb je zin in een terrasje, restaurant of een avond in het centrum? Dan sta je binnen enkele minuten in het bruisende hart van Leiden.
Begane grond:
Centrale entree met bellentableau en brievenbussen. Vanuit de hal is er toegang tot het trappenhuis met de appartementen en de bergingen in het souterrain.
Derde etage:
De woning heeft een ruime entreehal met toilet en meterkast, van waaruit vrijwel alle vertrekken toegankelijk zijn.
Aan de achterzijde ligt de royale woonkamer met open keuken, een prettige en lichte leefruimte waar het dagelijks wonen centraal staat. De keuken is praktisch ingedeeld en sluit direct aan op de woonkamer, waardoor er een open en betrokken geheel ontstaat. Vanuit de keuken is het balkon aan de achterzijde bereikbaar.
De achterzijde is voorzien van kunststof kozijnen en een kunststof schuifpui bij de keuken, wat zorgt voor comfort en onderhoudsgemak. Aan de voorzijde zorgen de grote houten raamkozijnen juist voor veel lichtinval en een ruimtelijk gevoel in de woning.
De woning beschikt over drie slaapkamers. Twee kamers liggen aan de achterzijde, terwijl de royale hoofdslaapkamer zich aan de voorzijde bevindt en toegang geeft tot het balkon aan de voorzijde. Deze hoofdslaapkamer is daarnaast voorzien van een wastafel.
De badkamer is praktisch ingericht en voorzien van een inloopdouche en de aansluiting voor de wasmachine.
Ruime privézolder met uitbreidingsmogelijkheden
Boven het appartement bevindt zich een ruime zolderverdieping van circa 43 m² die uitsluitend toegankelijk is voor de bewoner van dit appartement. Deze zolder is momenteel nog in eigendom van de VvE, maar kan in overleg worden aangekocht. Dit biedt een interessante mogelijkheid om extra ruimte aan de woning toe te voegen of de zolder naar eigen wens te benutten. Tijdens de bezichtiging vertel ik hier graag meer over.
Deze informatie is met de grootst mogelijke zorg samengesteld. Echter, wij aanvaarden geen aansprakelijkheid voor eventuele onvolledigheden of onjuistheden. Voor woningen ouder dan 30 jaar hanteren wij standaard een asbest- en ouderdomsclausule.
English text:
Bright 4-room apartment with sunny balcony in the Professorenwijk
Located on Burggravenlaan in Leiden, this well-maintained and bright apartment is situated on the third floor of a characteristic 1950s complex. The property offers a spacious and atmospheric living room with an open kitchen, three bedrooms, and a compact but functional bathroom. From the living room, you step directly onto the generous south-facing balcony, where you can enjoy the sun throughout the day. In the basement level, there are also two practical storage rooms.
Features:
•Year of construction: 1958
•Living area: approx. 77 m²
•Energy label: F
•Spacious living room with open kitchen
•Functional bathroom
•Large south-facing balcony
•2 storage rooms in the basement
•Private central heating system (boiler)
•Active homeowners’ association with a monthly contribution of €165
•Possibility to purchase the attic floor of approx. 43 m²
•Close to public transport and main roads
•Within a 10-minute bike ride from Leiden city centre
Location
This apartment is located in the popular Professorenwijk-Oost, a neighbourhood that quickly shows why people enjoy living here so much. The area has a quiet, green character with attractive avenues and a pleasant, almost village-like atmosphere, while still being right in the city. Everything you need is close by. For daily groceries, a run, or a relaxing afternoon in the greenery, you rarely need to leave the neighbourhood. At the same time, there is always some activity nearby, which keeps the area lively.
Accessibility is also excellent. Leiden Lammenschans station is just a short distance away, providing quick connections to other cities. And if you feel like sitting on a terrace, dining out, or enjoying an evening in the city centre, you can be in the vibrant heart of Leiden within minutes.
Ground floor
Central entrance with doorbell panel and mailboxes. From the hall, there is access to the staircase leading to the apartments and the storage rooms in the basement.
Third floor
The apartment has a spacious entrance hall with a toilet and meter cupboard, from which almost all rooms are accessible.
At the rear is the generous living room with open kitchen, a pleasant and bright living space where daily life takes centre stage. The kitchen is practically laid out and directly connected to the living room, creating an open and cohesive living area. The rear balcony is accessible from the kitchen.
The rear of the property features plastic window frames and a plastic sliding door in the kitchen, providing comfort and low maintenance. At the front, the large wooden window frames allow plenty of natural light and create a spacious feeling throughout the home.
The apartment has three bedrooms. Two rooms are located at the rear, while the spacious master bedroom is at the front and provides access to the front balcony. This master bedroom also features a washbasin.
The bathroom is practically designed and equipped with a walk-in shower and a washing machine connection.
Spacious private attic with expansion potential
Above the apartment is a spacious attic floor of approximately 43 m², which is exclusively accessible to the resident of this apartment. This attic is currently still owned by the homeowners’ association, but can be purchased in consultation. This offers an interesting opportunity to add extra space to the home or to use the attic as desired. I would be happy to tell you more about this during a viewing.
This information has been compiled with the utmost care. However, we do not accept any liability for any incompleteness or inaccuracies. For properties older than 30 years, we standardly apply an asbestos and age clause.