See English tekst below
Dit lichte en royale 4-kamer appartement bevindt zich op een fijne locatie in de Merenwijk en is gelegen op de 5e etage. Het ruime balkon geeft fraai uitzicht over de groene omgeving en een waterpartij. Je kunt hier tot laat in de middag van de zon genieten. Het appartement heeft een aparte berging op de begane grond. Voor de deur is er volop gratis parkeergelegenheid.
Via het nabijgelegen fietspad – sfeervol omgeven door slootjes en lage wilgen – fiets je zo naar het bruisende centrum van Leiden of richting de Kagerplassen. Het overdekte winkelcentrum De Kopermolen, met een breed en gevarieerd winkelaanbod, ligt letterlijk op loopafstand. Ook het nabijgelegen park biedt alle ruimte om heerlijk te ontspannen, en voor kinderen is er zelfs een leuke kinderboerderij aanwezig. Gelegen op 10 minuten fietsafstand van het Centraal Station en met de auto is de A4 of A44 eenvoudig te bereiken.Bekijk ook de bezichtigingsvideo
Bekijk ook de bezichtigingsvideo!
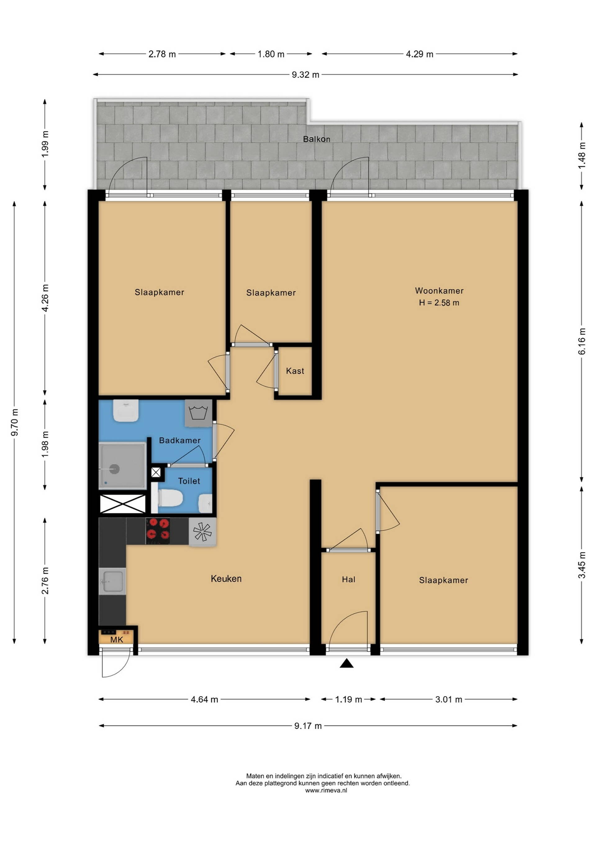
Indeling
Begane grond: Het complex beschikt over een nette gemeenschappelijke entree met bellentableau, brievenbussen, lift en trapopgang. De berging met elektra bevindt zich eveneens op de begane grond.
5e woonlaag
Bij binnenkomst kom je in de hal die toegang geeft tot de lichte en ruime woonkamer. Vanuit hier stap je zo het royale balkon op dat zich over de volledige breedte van het appartement uitstrekt.
In de ruime doorgang naar de keuken is momenteel een gezellige eethoek gecreëerd. De keuken ligt aan de voorzijde van het appartement en is voorzien van diverse inbouwapparatuur, waaronder een 5-pits gasfornuis, afzuigkap, oven en een koel-/vriescombinatie. De bovenkastjes zorgen voor extra opbergruimte.
Het appartement beschikt over drie slaapkamers: een ruime slaapkamer aan de voorzijde, een grote slaapkamer aan de achterzijde en een derde, iets kleinere kamer eveneens aan de achterzijde. Vanuit de grootste slaapkamer aan de achterzijde is er direct toegang tot het balkon.
De badkamer is uitgerust met een inloopdouche, een wastafelmeubel en aansluiting voor de wasmachine. Vanuit de badkamer is bovendien een separaat toilet met fonteintje bereikbaar.
De gehele woonlaag is voorzien van een fraaite laminaat vloer.
Bijzonderheden:
- Bouwjaar 1971
- Gebruiksoppervlakte wonen 88m2
- Gebouw gebonden buitenruimte 16m2(balkon)
- Externe bergruimte 8m2(berging BG)
- Inhoud 277m3
- VVE servicekosten € 335 per maand
- Verwaming middels blokverwarming (voorschot circa 82,- per maand)
- Warm water middels gasgeiser
- Nieuwe radiatoren(2026)
- Gratis parkeren
- Oplevering in overleg
Bij woningen ouder dan 30 jaar hanteren wij standaard een asbest- en ouderdomsclausule.
This bright and spacious 4-room apartment is located in a pleasant area in the Merenwijk and situated on the 5th floor. The generous balcony offers a lovely view over the green surroundings and a water feature, where you can enjoy the sun until late afternoon. The apartment includes a separate storage room on the ground floor. There is ample free parking available right outside.
Via the nearby cycling path – charmingly surrounded by small canals and low willow trees – you can easily bike to the vibrant city center of Leiden or towards the Kagerplassen. The covered shopping center De Kopermolen, offering a wide variety of shops, is literally within walking distance. The nearby park is perfect for relaxation, and for children there is even a fun petting zoo. The apartment is located just a 10-minute bike ride from Central Station, and the A4 and A44 motorways are easily accessible by car.
Be sure to also watch the viewing video!
Layout
Ground floor: The complex features a neat communal entrance with an intercom system, mailboxes, elevator, and staircase. The storage room with electricity is also located on the ground floor.
5th floor:
Upon entering, you arrive in the hallway, which provides access to the bright and spacious living room. From here, you can step directly onto the generous balcony that spans the full width of the apartment. In the spacious passage to the kitchen, a cozy dining area has been created. The kitchen is located at the front of the apartment and is equipped with various built-in appliances, including a 5-burner gas stove, extractor hood, oven, and a fridge/freezer combination. Upper cabinets provide additional storage space.
The apartment has three bedrooms: a spacious bedroom at the front, a large bedroom at the rear, and a third, slightly smaller room also at the rear. The largest bedroom at the rear has direct access to the balcony. The bathroom is fitted with a walk-in shower, vanity unit, and a connection for a washing machine. From the bathroom, a separate toilet with a small sink can also be accessed.
The entire floor is finished with an attractive laminate floor.
Details:
•Built in 1971
•Living area: 88 m²
•Building-related outdoor space: 16 m² (balcony)
•External storage: 8 m² (ground floor storage)
•Volume: 277 m³
•Homeowners association (VvE) service costs: €335 per month
•Heating via block heating (advance payment approx. €82 per month)
•Hot water via gas geyser
•New radiators (2026)
•Free parking
•Transfer in consultation
For properties older than 30 years, we standardly include an asbestos and age clause.