View
Information
Description
English text see below
Wonen aan de Schelpenkade op een van de meest unieke plekjes van Leiden!
Dit zeer royale herenhuis van maar liefst 200m2 woonoppervlak ligt op één van de mooiste, autovrije locaties van Leiden, aan de rand van de binnenstad met uitzicht op de gracht ‘De Vliet’. Deze geheel gerenoveerde woning uit 1850 met beschermd stadsgezicht is zeer goed onderhouden en heeft 5 ruime slaapkamers en een prachtige zonnige achtertuin met o.a. druivenranken en een vijgenboom. Een karakteristiek huis met ruimte, veel licht, historie en rust op een bijzondere plek!
De schilderachtige en rustige locatie bevindt zich zeer gunstig aan de rand van het historische centrum van Leiden met haar vele winkels, terrasjes, grachten, musea en de gezellige zaterdagmarkt. Het station ligt op vijf minuten fietsen afstand en met de auto zit je snel op de A4, A44 of N11 richting Amsterdam, Den Haag of Utrecht. Een echte A-locatie.
Bekijk vooral ook de bezichtigingsvideo!
Indeling
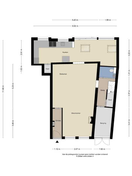
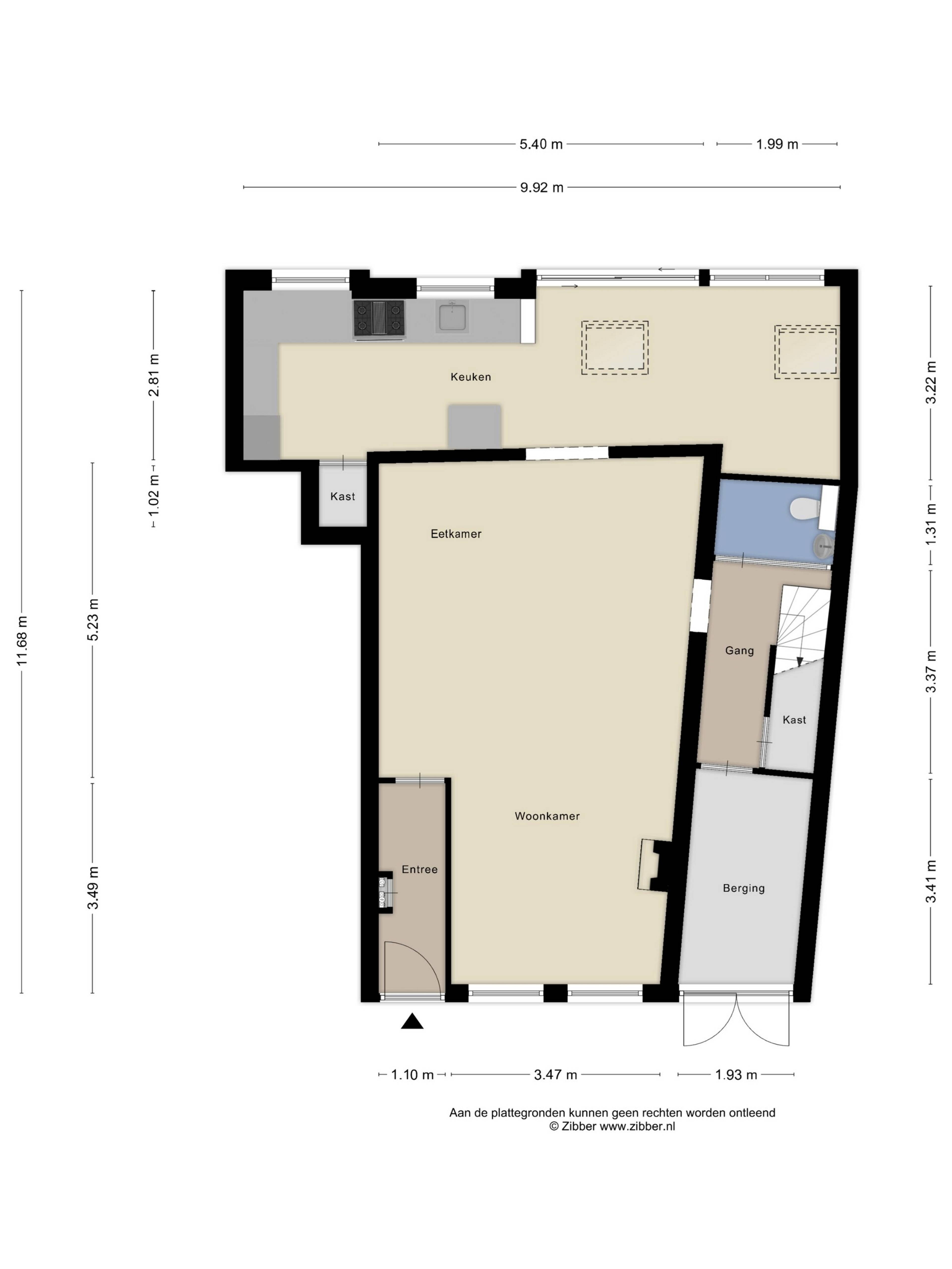
Entree en begane grond:
Via de hal met garderobe kom je in de royale, lichte en sfeervolle woonkamer met een hoog plafond, een openhaard en prachtig zicht op het water en de bootjes aan de voorzijde van het huis. Aan de achterzijde een grote luxe woonkeuken met toegang tot de fraai aangelegde zonnige achtertuin met een achterom.
Daarnaast is er aan de voorzijde van het huis nog een tweede entree waar je middels openslaande deuren in een ruime hal komt die o.a. ook zeer geschikt is als extra bergruimte en het stallen van de fietsen.
De moderne keuken beschikt over een natuurstenen blad, een vaste kast en diverse luxe inbouwapparatuur zoals o.a. een Quooker, vaatwasser, Boretti 6 pits gasfornuis met wokbrander en brede oven, koel/vriescombinatie en een los keukenblok voor extra opbergruimte. Door de vele raampartijen en dakramen is de keuken zeer licht. Zowel in de woonkamer als keuken ligt een fraaie massief eikenhouten vloer.
De zonnige achtertuin (Z/O) is bereikbaar middels een grote schuifpui vanuit de woonkeuken en via het pad aan de achterzijde. De tuin biedt veel privacy en is fraai aangelegd. Hij is verdeeld in een terras omringd met houten vlonders en een groot terras waardoor je meerdere gezellige zithoekjes kan creëren.
Via de tweede hal met een modern toilet met fontein en toegang tot de berging bereik je de eerste verdieping.
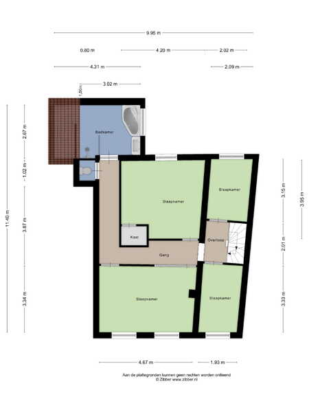
Eerste verdieping:
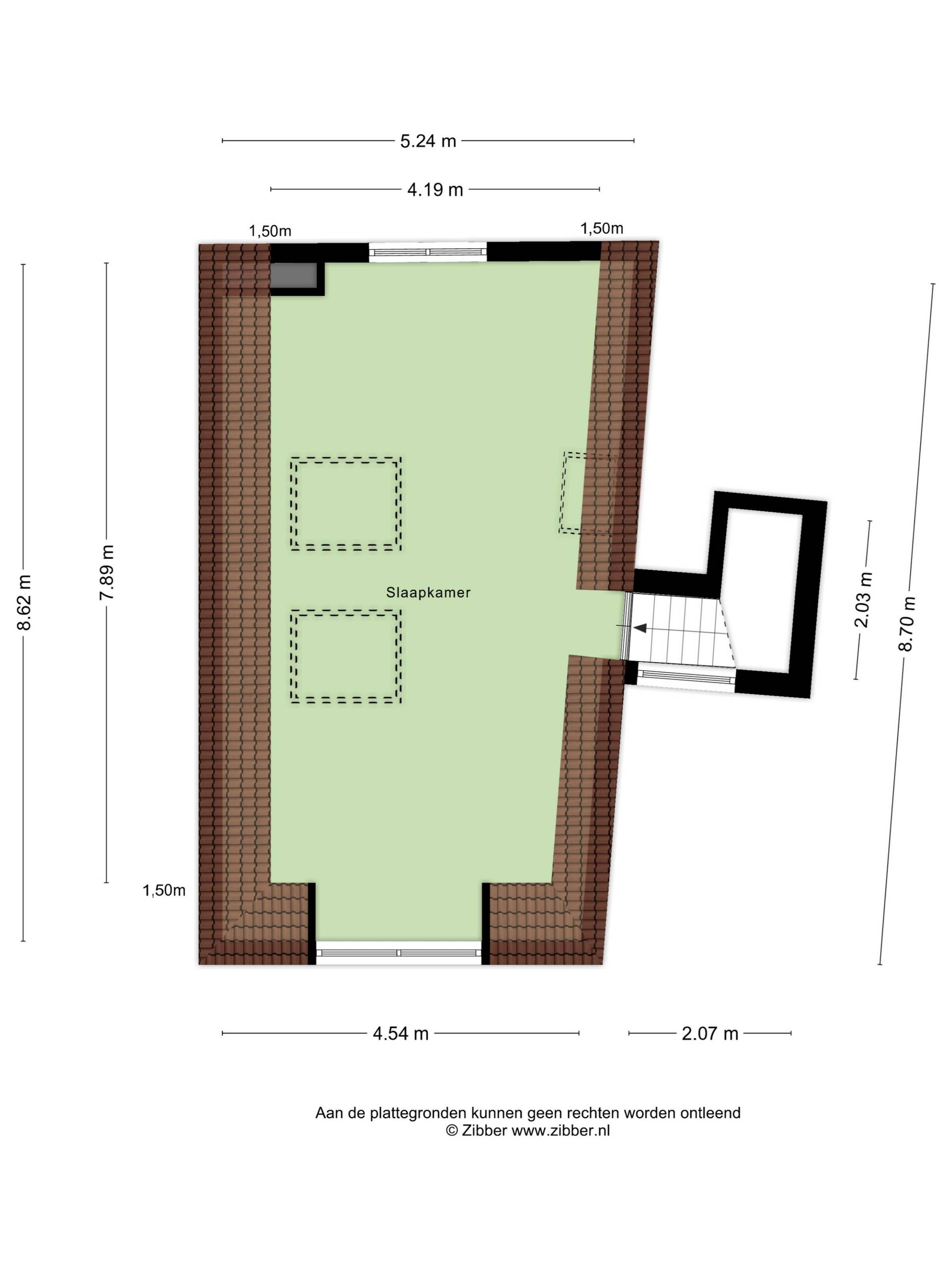
Een zeer lange L-vormige overloop met toegang tot de vier fijne slaapkamers, de badkamer en een separaat toilet.
Zowel aan de voor- als aan de achterzijde liggen twee hele ruime en lichte slaapkamers met ook hier weer de hoge plafonds en de hoge ramen. Daarnaast ook nog twee mooie slaapkamers waarvan er een in gebruik is als werkkamer. De sfeervolle badkamer bestaat uit een hoek ligbad, dubbele wastafel, designradiator en een inloop (regen)douche. De hele badkamer is fraai betegeld met Portugese designtegels.
Ook hier geniet je vanuit de slaapkamers aan de voorzijde van het prachtige uitzicht op het water en de kade. De hele verdieping is voorzien van een massief eikenhouten vloer.
Tweede verdieping:
Een verrassend en zeer ruime en bovenverdieping met een dakkapel aan de voorzijde en meerdere Velux dakramen in de open gewerkte nok. In deze fraaie ruimte kunnen makkelijk twee slaapkamers worden gecreëerd. Ook hier is alles weer op hoog niveau afgewerkt met o.a. prachtige shutters voor alle vaste ramen als op een dakraam wat het een prachtig geheel maakt. Op de overloop bevindt zich nog een bergruimte. Ook deze verdieping is voorzien van een massieve eikenhouten vloer.
Bijzonderheden
•Bouwjaar 1850, geheel gerenoveerd in 2009
•Beschermd stadsgezicht
•Gebruiksoppervlakte wonen 201m2
•Perceel 92 m2
•Interne bergruimte
•Moderne meterkast
•Recent bouwtechnisch rapport aanwezig
•Vergunning voor betaald parkeren € 61,- per jaar
•Energielabel C
•Dubbel glas HR++
•Vloerisolatie
•CV ketel merk Remeha bouwjaar 2005
•Oplevering in overleg
Bij woningen ouder dan 30 jaar hanteren wij standaard een ouderdomsclausule
----------------------------------------------------------------------------------------
Living on the Schelpenkade – One of the Most Unique Spots in Leiden!
This very spacious townhouse offers no less than 200 m² of living space and is situated in one of the most beautiful car-free locations in Leiden, on the edge of the city center with a stunning view over the canal ‘De Vliet’. This fully renovated 1850s property, which is a listed part of the city’s protected heritage, is excellently maintained and features 5 generous bedrooms and a beautiful, sunny backyard with grapevines and a fig tree. A characteristic home with space, lots of light, history, and peace – all in a remarkable location!
This picturesque and tranquil location lies conveniently on the edge of Leiden's historic city center, known for its many shops, terraces, canals, museums, and the vibrant Saturday market. Leiden Central Station is just five minutes away by bike, and by car, you have quick access to the A4, A44, or N11 highways towards Amsterdam, The Hague, or Utrecht. A true prime location.
Be sure to watch the viewing video!
Layout
Entrance and Ground Floor:
Through the hallway with coat storage, you enter the spacious, bright, and atmospheric living room featuring high ceilings, a fireplace, and beautiful views of the water and boats at the front of the house. At the rear, there is a large luxury kitchen-diner with access to the beautifully landscaped, sunny garden with rear entrance.
Additionally, there is a second entrance at the front of the house with French doors leading into a spacious hall – also ideal for additional storage or bicycle parking.
The modern kitchen is equipped with a natural stone countertop, built-in cupboards, and various luxury appliances, including a Quooker, dishwasher, Boretti 6-burner gas stove with wok burner and wide oven, fridge/freezer combination, and a freestanding kitchen unit for extra storage. Thanks to the many windows and skylights, the kitchen is exceptionally bright. Both the living room and kitchen feature beautiful solid oak flooring.
The sunny southeast-facing garden is accessible through large sliding doors from the kitchen and via the path behind the house. The garden offers a lot of privacy and is beautifully landscaped, with a decked terrace and a large paved area that allow for multiple cozy seating areas.
From the second hall, which includes a modern toilet with washbasin and access to the storage room, you reach the first floor.
First Floor:
A long L-shaped landing gives access to four lovely bedrooms, the bathroom, and a separate toilet.
Both at the front and rear are two very spacious and bright bedrooms, again with high ceilings and tall windows. There are also two additional charming bedrooms, one currently used as a home office.
The stylish bathroom includes a corner bathtub, double sink, designer radiator, and a walk-in (rain)shower. The entire bathroom is beautifully tiled with Portuguese design tiles.
From the front bedrooms, you can enjoy beautiful views of the water and the quay. The entire floor has solid oak flooring.
Second Floor:
A surprisingly spacious top floor with a dormer at the front and several Velux skylights in the open roof ridge. This beautiful space could easily be divided into two additional bedrooms. Finishes are again of a high standard, including gorgeous shutters on all fixed windows and one skylight, creating a harmonious look. There is also additional storage space on the landing. This floor is also finished with solid oak flooring.
Details
• Built in 1850, fully renovated in 2009
• Listed cityscape / protected heritage site
• Usable living space: 201 m²
• Plot size: 92 m²
• Internal storage space
• Modern electrical panel
• Recent technical inspection report available
• Paid parking permit available: €61 per year
• Energy label C
• HR++ double glazing
• Floor insulation
• Central heating boiler: Remeha, year 2005
• Delivery in consultation
For homes over 30 years old, we apply a standard age clause.
Specifications
Address
2313 ZT Leiden
Price
Details
Layout
Garden
Garage
Bergruimte
Energy rating
Your estate agent
Gijs de Kok
Interested in this property? We will gladly contact you. Fill in this form for a viewing of this property or for more information. We will contact you as soon as possible.





