View
Information
Description
English text see below
In de duurzame wijk Roomburg gelegen, zeer royale, energiezuinige en levensloopbestendige hoekwoning met veel lichtinval. Deze unieke, moderne woning heeft 3 slaapkamers, 2 badkamers, een souterrain, een dakterras (ZO) en een fijne binnentuin. De woning beschikt over een mechanisch ventilatiesysteem, een aansluiting op het stadverwarmingsnet (gasloos) en grote raampartijen die voor veel licht zorgen. Dit huis moet je van binnen zien! Er zijn diverse mogelijkheden om een eigen kantoor of comfortabel slaapgedeelte op de begane grond te creëren. Kortom een prachtige en unieke woning op een ideale locatie!
De Venusstraat is een autoluwe straat, wat zorgt voor rust en ruimte. De wijk biedt meerdere faciliteiten waaronder een gezondheidscentrum en goede openbaar vervoer voorzieningen (bushalte op 2 minuten loopafstand). Roomburg beschikt over een mooi haventje, vanwaar het kanaal en alle andere waterwegen makkelijk te bereiken zijn. Polderpark Cronesteyn, Park Roomburg, het Matilo Park, hockey-/tennis- en voetbalvelden, diverse scholen (basis- en middelbaar onderwijs), kinderdagverblijven, speelvoorzieningen en NS-station Lammenschans en supermarkten liggen in de directe omgeving. Het historische en bruisende centrum van Leiden met diverse restaurants, winkels, musea en het Centraal Station liggen op ongeveer 10 minuten fietsen. Tevens is de wijk gunstig gelegen ten opzichte van uitvalswegen A4 /N11 (richting Amsterdam, Den Haag, Rotterdam en Utrecht), en rijdt u binnen 25 minuten naar de kust.
Indeling
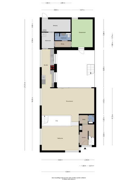
Begane grond:
Entree via een houten veranda met ernaast een afgesloten box voor de afvalcontainers. Via de lichte, hoge (vide)hal - met lichtkoepel, meterkast, toilet en open trap naar de eerste verdieping - komt u in de woonkamer. De ruime en lichte woonkamer is voorzien van vloer- en wandverwarming en geeft via de achterzijde middels een schuifpui toegang tot de fijne binnentuin (ZO). De eetkamer ligt (split level) aan de voorzijde van de woning en is te bereiken via een klein aantal traptreden.
Aan de achterzijde is de halfopen, moderne keuken gesitueerd, voorzien van een koelkast, inductiekookplaat met afzuigkap, vaatwasser, combi-oven en een koof met inbouwverlichting. Aansluitend nog een bijkeuken, voorzien van een extra wasmachine- aansluiting t.b.v. levensloopbestendigheid en inpandige berging (met gootsteen). De berging is tevens vanuit de achterzijde van de woning te bereiken.
Het ruime souterrain is te bereiken via een open trap in de woonkamer en is thans ingericht als werkkamer. Deze ruimte biedt ook toegang tot een extra grote inpandige berging (gesplitst in tweeën en met tussendeur).
Daarnaast bevindt zich op de begane grond een slaapkamer aan de achterzijde, met toegang tot een badkamer met douche, wastafel en toilet. Deze slaapkamer biedt tevens toegang tot de binnentuin.
De gehele begane grond (op de slaapkamer na) en het souterrain zijn voorzien van een fraaie Belgisch hardstenen vloer.
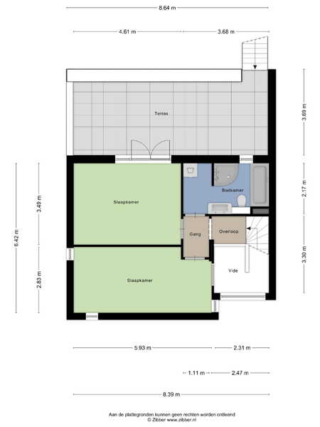
Eerste verdieping:
Via de overloop heeft u toegang tot de (2e) badkamer en twee ruime slaapkamers. De slaapkamer aan de achterzijde biedt via openslaande deuren toegang tot een mooi en ruim dakterras op het zonnige zuidoosten. Vanuit het dakterras is via een stalen trap ook de binnentuin weer te bereiken.
De badkamer is voorzien van een ligbad, douchecabine, toilet en brede wastafel. Hier bevindt zich ook de wasmachine opstelling.
Er is een bouwtechnische keuring beschikbaar. De woning is uitstekend onderhouden.
Bijzonderheden:
- Bouwjaar 2005
- Vloerverwarming en wandverwarming in de woonkamer, keuken, souterrain en badkamer boven. De andere ruimten hebben wandverwarming.
- Gebruiksoppervlakte wonen 202 m2
- Overig inpandige ruimte 13 m2 (berging in het souterrain)
- Gebouw gebonden buitenruimte 27 m2 (dakterras)
- Inhoud 764m3
- Perceel oppervlak 216 m2
- Energielabel A
- Erfpacht € 3212,-- per jaar, adm. kosten € 48,50 (2029 herziening canon, loopt tot 2078)
- Moderne meterkast met 11 groepen
- Warm water en verwarming via stadsverwarming
- Gasloos
- 6 zonnepanelen (2005)
- Mechanische ventilatie (de 2 ventilatieboxen zijn vervangen in 2021)
- Schilderwerk buitenzijde 2024
- Oplevering in overleg
----------------------------------------------------------------------------------------------------------------------------------
Located in the sustainable neighborhood of Roomburg, this very spacious, energy-efficient, and future-proof corner house offers an abundance of natural light. This unique, modern home features 3 bedrooms, 2 bathrooms, a basement, a southeast-facing rooftop terrace, and a pleasant inner garden. The property is equipped with a mechanical ventilation system, connected to the district heating network (gas-free), and has large windows that provide plenty of daylight. In short, a beautiful and unique home in an ideal location!
Venusstraat is a low-traffic street, offering peace and space. The neighborhood provides various amenities including a health center and excellent public transportation (bus stop within a 2-minute walk). Roomburg has a charming little harbor, from which the canal and other waterways are easily accessible. Nearby you'll find Polderpark Cronesteyn, Park Roomburg, Matilo Park, hockey/tennis/football fields, multiple schools (primary and secondary), daycare centers, playgrounds, Lammenschans train station, and supermarkets. The historic and vibrant city center of Leiden, with its restaurants, shops, museums, and Central Station, is about 10 minutes away by bike. The area is also conveniently located near the A4/N11 motorways (to Amsterdam, The Hague, Rotterdam, and Utrecht), and the coast can be reached within 25 minutes by car.
Layout
Ground floor:
Entrance via a wooden veranda with an adjacent enclosed box for waste containers. Through the bright, tall entrance hall (with skylight), you access the utility meter cupboard, a toilet, and an open staircase to the first floor. The spacious and bright living room features both floor and wall heating and provides access to the southeast-facing inner garden via sliding doors at the rear. The dining area, located at a slightly higher split-level in the front part of the house, is accessible via a few steps.
At the rear, the semi-open, modern kitchen is equipped with a refrigerator, induction cooktop with extractor hood, dishwasher, combination oven, and recessed lighting. Adjoining the kitchen is a utility room with an additional washing machine connection (enhancing accessibility for future-proof living) and an indoor storage room with a sink. This storage area is also accessible from the rear side of the house.
The spacious basement, accessed via an open staircase from the living room, is currently used as an office. This area also leads to an extra-large indoor storage space (divided into two sections with an internal door).
Also on the ground floor is a bedroom located at the rear, with access to a bathroom featuring a shower, sink, and toilet. This bedroom also has direct access to the inner garden.
The entire ground floor (except for the bedroom) and the basement have beautiful Belgian bluestone flooring.
First floor:
The landing provides access to the second bathroom and two spacious bedrooms. The rear bedroom opens via double doors to a lovely, spacious rooftop terrace facing the sunny southeast. A steel staircase from the terrace leads directly down to the inner garden.
The bathroom is equipped with a bathtub, shower cabin, toilet, and wide sink. The washing machine is also located here.
A structural inspection report is available. The house is in excellent condition.
Features:
- Year of construction: 2005
- Floor and wall heating in the living room, kitchen, basement, and upstairs bathroom. Other rooms have wall heating
- Living space: 202 m²
- Other indoor space: 13 m² (basement storage)
- Building-related outdoor space: 27 m² (roof terrace)
- Volume: 764 m³
- Plot size: 216 m²
- Energy label: A
- Annual ground lease: €3,212, administration costs €48.50 (review in 2029, lease runs until 2078)
- Modern electrical panel with 11 circuits
- Heating and hot water via district heating
- Gas-free
- 6 solar panels (installed in 2005)
- Mechanical ventilation (2 units replaced in 2021)
- Exterior painting done in 2024
- Delivery in consultation
Specifications
Address
2314 BH Leiden
Price
Details
Layout
Garden
Garage
Bergruimte
Energy rating
Downloads
Your estate agent
Gijs de Kok
Interested in this property? We will gladly contact you. Fill in this form for a viewing of this property or for more information. We will contact you as soon as possible.





