View
Information
Description
English text see below
Een ruime woning met authentieke details
Met maar liefst vier woonlagen heeft deze woning een scala aan mogelijkheden. Vier van de vijf slaapkamers zijn maar liefst ruim 4 meter lang en 3,5 meter breed. Dat geeft nog eens ruimte. En dan is de zolderetage ook nog in te zetten als slaapkamer, hobbyruimte of kantoor aan huis. In de jaren ’30 gebouwd en dat is nog steeds te merken als je in de woning rondloopt. De glas-in-loodramen, een granito vloer, originele paneeldeuren, erkers, een klassieke buffetkast en ingebouwd kruidenrek in de keuken én een vestibule. Allemaal elementen die nog bewaard zijn. Het straalt de grandeur van een herenhuis uit.
In de presentatie zijn ook digitale stylingfoto's(artist impressions) opgenomen van een woonkamer met een open keuken en de tuin zonder de berging.
Op de toekomst gericht
De geliefde Professorenwijk is ontstaan in de jaren ’30. Stevige en goede bouw, maar de tijd staat niet stil. Volledig nieuw dak, lood, zink, geïmpregneerde schoorstenen, extra regenpijp en een nieuwe dakkapel. Dat zijn de investeringen die er voor zorgen dat er de vele komende jaren zorgeloos genoten kan worden van deze woning.
Duurzaam
De 10 zonnepanelen zorgen voor een aanzienlijke verlaging van de energiekosten. In combinatie met dakisolatie, spouwmuurisolatie, grotendeels dubbel glas en een, in 2025 geplaatste, CV ketel heeft dit geleidt tot energielabel B. Haast uniek in deze wijk.
De Sitterlaan is gunstig gelegen met in de directe omgeving leuke buurtwinkels, (basis)scholen, park Cronesteyn, sportaccommodaties en het NS Station Lammenschans. Op enkele fietsminuten sta je in de historische binnenstad van Leiden met leuke terrasjes, vele winkels en musea. De verbindingswegen naar de N11 en A4 (richting Den Haag, Amsterdam, Utrecht) zijn tevens eenvoudig te bereiken.
Indeling:
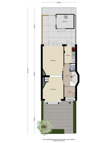
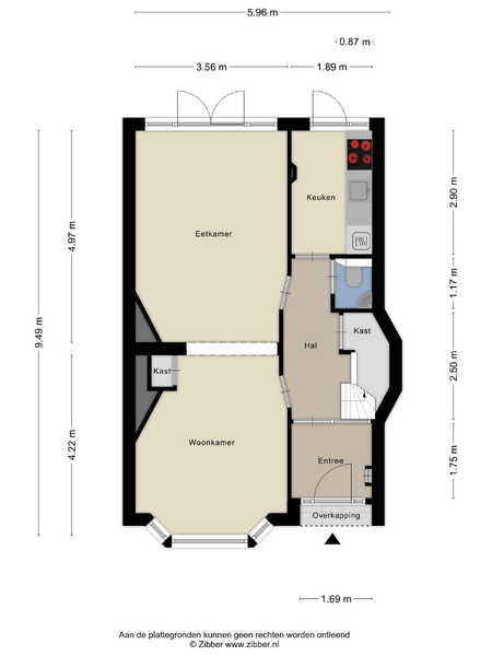
Begane grond:
Voortuin (ZO). Authentieke entree met glas in lood ramen. Vestibule met meterkast. Aansluitend een hal met trapopgang (met trapkast) naar de eerste verdieping en een toilet (met fonteintje). Toegang tot een lichte en ruime woon/eetkamer, voorzien van een houten vloer, en met erker (inclusief glas in lood) aan de voorzijde en openslaande deuren naar de ruime achtertuin (NW) met houten berging (inclusief elektra) en achterom. Aansluitend een gesloten keuken met originele granito vloer en buffetkast en voorzien van diverse inbouwapparatuur waaronder een inductieplaat, afzuigkap, vaatwasser, combi-oven en close in boiler. Vanuit de keuken is er tevens toegang tot de achtertuin.
1e verdieping:
Overloop met toilet en trapopgang naar de tweede verdieping. Royale slaapkamer aan de voorzijde met erker (met glas in lood). Nog een kleinere (slaap)kamer aan de voorzijde. Royale slaapkamer aan de achterzijde met toegang tot een overdekt balkon. Daarnaast een badkamer met wastafelmeubel, douche en designradiator.
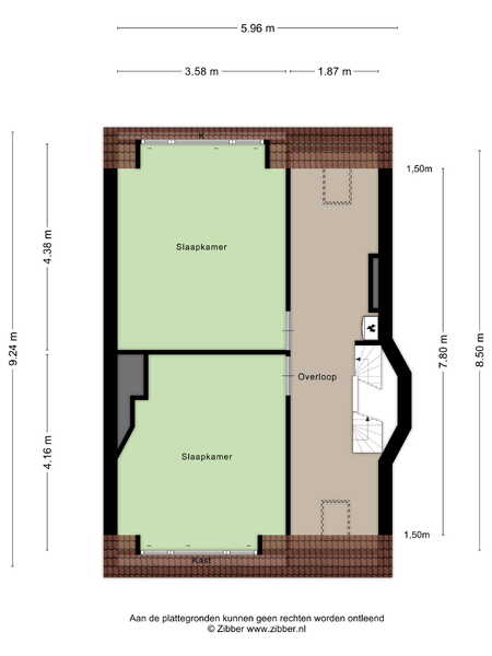
2e verdieping:
Overloop met opstelling CV ketel, twee veluxramen (voor en achterzijde) en vaste trapopgang naar de zolderverdieping. Een royale slaapkamer aan de voorzijde voorzien van een dakkapel en met bergruimte onder de knieschotten. Nog een ruime slaapkamer aan de achterzijde met dakkapel en tevens bergruimte onder de knieschotten.
Zolder:
Via een vaste trap te bereiken ruime zolderverdieping met de originele balkenconstructie, een groot veluxraam (aan de achterzijde), opstelling wasmachine/droger en veel bergruimte. Hier zou desgewenst nog een slaapkamer gecreëerd kunnen worden.
Bijzonderheden:
- Bouwjaar 1938
- Beschermd stadsgezicht
- Gebruiksoppervlakte 162m2
- Gebouw gebonden buitenruimte 3m2 (balkon)
- Externe bergruimte 7m2 (berging)
- Inhoud 574m3
- Perceeloppervlakte 121m2
- CV ketel Vaillant CW5, bouwjaar 2025
- 10 zonnepanelen (2023)
- Energielabel B
- Moderne meterkast met 7 groepen
- Grotendeels dubbelglas (badkamer, kleine kamer 1e verdieping en keuken enkel glas)
- Voorzetramen glas in lood
- Schilderwerk buitenzijde (2025)
- Nieuwe dakpannen (2023)
- Dakisolatie
- Spouwmuurisolatie
- Parkeren voor vergunninghouders (vergunning eerste auto ca. € 55,- per jaar, geen wachtlijst)
- Oplevering in overleg
Bij woningen ouder dan 30 jaar hanteren wij standaard een ouderdoms- en asbestclausule. De tuinafmetingen zijn opgenomen aan de hand van de kadastrale kaart.
----------------------------------------------------------------------------------------------------------------------------------------------------------------------------
A Spacious Home with Authentic Details
With no fewer than four floors, this house offers a wide range of possibilities. Four of the five bedrooms are an impressive 4 meters long and 3.5 meters wide—now that’s space. The attic floor can also be used as an additional bedroom, hobby room, or home office.
Built in the 1930s, the character of that era is still very much present throughout the home. Stained glass windows, a granite floor, original panel doors, bay windows, a classic built-in buffet cabinet, a spice rack in the kitchen, and a vestibule—these features have all been preserved. The house exudes the grandeur of a traditional townhouse.
Future-Proof Living
The popular Professorenwijk neighborhood was established in the 1930s—known for its solid, high-quality construction. But time doesn't stand still. A brand-new roof, lead and zinc work, waterproofed chimneys, an extra downspout, and a new dormer window. These investments ensure carefree living for many years to come.
Sustainable Features
The 10 solar panels significantly reduce energy costs. Combined with roof insulation, cavity wall insulation, mostly double glazing, and a new central heating boiler (installed in 2025), the house now has an energy label B—almost unique in this neighborhood.
Sitterlaan is ideally located, with charming local shops, primary schools, Cronesteyn Park, sports facilities, and Lammenschans train station all nearby. The historic city center of Leiden, with its cozy cafés, many shops, and museums, is just a few minutes away by bike. The N11 and A4 motorways (towards The Hague, Amsterdam, and Utrecht) are also easily accessible.
Layout:
Ground floor:
Front garden (SE-facing). Authentic entrance with stained glass windows. Vestibule with fuse box. Hallway with staircase (including cupboard underneath) to the first floor and a toilet with washbasin. Access to a bright and spacious living/dining room with wooden flooring, a bay window (with stained glass) at the front, and French doors leading to the generous northwest-facing backyard with wooden shed (including electricity) and back entrance. Adjacent is a separate kitchen with original granite floor and built-in buffet cabinet, equipped with various built-in appliances including an induction cooktop, extractor hood, dishwasher, combination oven, and close-in boiler. The kitchen also provides access to the backyard.
First floor:
Landing with toilet and stairs to the second floor. Spacious front bedroom with bay window (with stained glass). Additional smaller (bed)room at the front. Large rear bedroom with access to a covered balcony. Also on this floor: bathroom with washbasin unit, shower, and designer radiator.
Second floor:
Landing with central heating system, two Velux windows (front and rear), and fixed staircase to the attic. Large front bedroom with dormer and storage under the eaves. Another spacious rear bedroom with dormer and also with storage under the eaves.
Attic:
Accessible via a fixed staircase. Large attic room with original beam structure, a large Velux window (rear), washer/dryer setup, and ample storage. This space could be transformed into an additional bedroom if desired.
Details:
- Built in 1938
- Located in a protected cityscape area
- Usable floor area: 162 m²
- Outdoor space: 3 m² (balcony)
- External storage: 7 m² (shed)
- Volume: 574 m³
- Plot size: 121 m²
- Central heating boiler: Vaillant CW5, built in 2025
- 10 solar panels (2023)
- Energy label B
- Modern fuse box with 7 circuits
- Mostly double glazing (except bathroom, small room on 1st floor, and kitchen which have single glazing)
- Stained glass with secondary glazing
- Exterior paintwork done in 2025
- New roof tiles (2023)
- Roof insulation
- Cavity wall insulation
- Parking with permit (first permit approx. €55/year, no waiting list)
- Delivery in consultation
For properties older than 30 years, we apply a standard age and asbestos clause. Garden dimensions are based on the cadastral map.
Specifications
Address
2313 TS Leiden
Price
Details
Layout
Garden
Garage
Bergruimte
Energy rating
Downloads
Your estate agent
Gijs de Kok
Interested in this property? We will gladly contact you. Fill in this form for a viewing of this property or for more information. We will contact you as soon as possible.







