View
Information
Description
See English text below:
Uniek herenhuis van 249m2 op een riant perceel van maar liefst 525m2 met een modern tuinhuis! Bij dit woonoppervlakte is de riante kelder (51m2) nog niet meegerekend.
Deze bijzondere en royale woning beschikt over drie slaapkamers (eventueel uit te breiden), twee badkamers en een zeer ruime living met meerdere niveauverschillen en een serre. Achter in de fraai aangelegde tuin staat een modern tuinhuis (2018), voorzien van een keuken, badkamer en een ruime living. Daarnaast bevindt zich onder de gehele woning een kelder, waarin onder andere een sauna, douche, werkkamer en wasruimte zijn gesitueerd. Dit unieke object met tuinhuis biedt volop mogelijkheden voor een praktijk aan huis of atelier. Achter de woning zijn twee overdekte parkeerplaatsen aanwezig. De woning dient hier en daar te worden gemoderniseerd.
De Hoge Rijndijk ligt in de populaire Rijndijkbuurt nabij middelbare en basisscholen, NS station Lammenschans, park Roomburg, park Cronesteyn en diverse sportfaciliteiten zoals o.a. tennis- en hockeyvelden. Binnen enkele fietsminuten sta je in de historische binnenstad van Leiden met de vele terrasjes, winkels, musea en grachten. Ook het Science Park, het LUMC, het Centraal Station van Leiden en de uitvalswegen richting Amsterdam, Den Haag (A4) en Utrecht (N11) zijn snel te bereiken.
Bekijk ook de bezichtigingsvideo!
Indeling
Begane grond;
De voortuin biedt toegang tot de entree. Vanuit de vestibule kom je in de royale hal, die toegang geeft tot de woonkamer, zitkamer, keuken, het toilet, de kelder en de trap naar de eerste verdieping. De woonkamer is uitgevoerd in split-level en kenmerkt zich door meerdere niveauverschillen. Aan de voorzijde bevindt zich het eetgedeelte met een sfeervolle gashaard, originele vaste kasten en aan de zijkant een trap naar de riante kelder. In het middengedeelte van de woonkamer ligt een ruim zitgedeelte met een gezellige houthaard in een fraaie schouw. Dit deel heeft hoge plafonds met ornamenten en ook hier zijn de karakteristieke originele vaste kasten met kleine ruitjes aanwezig. Via een originele glazen wand met en-suitedeuren bereik je een tweede zitgedeelte, dat na enkele treden overgaat in de serre. Dankzij de zijlichten en dakramen is dit een heerlijk lichte, zonnige ruimte met prachtig uitzicht op de tuin. Via dubbele schuifdeuren heb je direct toegang tot de fantastische tuin. De gesloten keuken is tevens vanuit de woonkamer te bereiken en beschikt over diverse inbouwapparatuur o.a. een inductiekookplaat , een vaatwasser, een koelkast en een afzuigkap. Ook vanuit de keuken is er toegang tot de tuin.
De fraai aangelegde achtertuin van circa 315 m² ligt op het westen en is speels ingedeeld met meerdere zones en vijvers. In het voorste gedeelte bevinden zich een terras, een gazon en een vijver. Via een pad bereik je het tweede deel van de tuin, waar eerst een groot terras ligt, gevolgd door een bruggetje naar het achterste gedeelte met het fraaie tuinhuis (ca. 42 m²). Overal in de tuin vind je prachtige beelden. Deze blijven achter met uitzondering van het beeld van de grote vogel bij de vijver bij de woning en het beeld van de vogel in het midden van de tuin.
TUINHUIS
Het moderne tuinhuis beschikt over een ruime L-vormige living met open keuken, voorzien van onder andere een inductiekookplaat, vaatwasser, koel-vriescombinatie en bovenkasten met geïntegreerde afzuigkap. De badkamer is uitgerust met een inloopdouche, wastafelmeubel, toilet (verbrander) en extra bergruimte. Dankzij de ronde lichtkoepel in het dak en de grote raampartijen is dit een aangename, lichte en zonnige ruimte met veel gebruiksmogelijkheden, mede doordat het tuinhuis via de achterom bereikbaar is. Het tuinhuis is voorzien van vloerverwarming, gevoed door een warmtepomp, en beschikt daarnaast over een boiler en cv-ketel. Achter het tuinhuis bevindt zich een technische ruimte met onder andere de warmtepomp en cv-ketel, evenals extra bergruimte, bijvoorbeeld voor fietsen. Achter de woning zijn twee overdekte parkeerplaatsen aanwezig, waarvan één bij de woning hoort.
1e verdieping:
Royale overloop met dakraam en vaste kast. Aan de voorzijde bevindt zich een ruime en sfeervolle slaapkamer met een vaste kast en een schouw (niet in gebruik). Ook hier zorgen het hoge plafond met ornamenten en de fraaie originele ramen voor veel karakter. Aan de achterzijde ligt een comfortabele slaapkamer met aangrenzend een ruimte die uitstekend kan dienen als walk-in closet. Via openslaande deuren is er toegang tot het grote, op het westen gelegen balkon met een prachtig uitzicht over de tuin en de groene omgeving.
Vanuit deze slaapkamer heb je direct toegang tot de royale badkamer, die is voorzien van een hoekjacuzzi, een inloopdouche, een toilet, een bidet, een designradiator en een wastafelmeubel met spiegel. De tweede badkamer is bereikbaar vanuit de hal en beschikt over een douche, een toilet, een designradiator en een wastafelmeubel met spiegel.
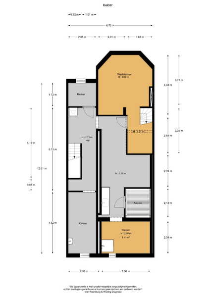
KELDER
De kelder is zowel vanuit de woonkamer als de hal toegankelijk en biedt talloze mogelijkheden. Momenteel bestaat de kelder uit meerdere ruimtes, waaronder een werkkamer, een ruimte met een ingebouwde sauna en een keukenblok, een kamer met een douchecabine, een hobbyruimte met wastafel en een aparte ruimte met de wasopstelling. De hoogte van de ruimtes varieert; sommige zijn circa 2 meter hoog, terwijl andere iets lager zijn.
Bijzonderheden:
- Bouwjaar 1925
- Gebruiksoppervlakte wonen totaal 249m2 (woonhuis 207 m2 en tuinhuis 42m2)
- Perceeloppervlakte 525 m2
- Inhoud totaal 1082m3 (woonhuis 889m3 en tuinhuis 193m3)
- Een recent bouwtechnisch rapport is beschikbaar
- zonnepanelen 12
- 2 badkamers
- Vloerverwarming tuinhuis middels warmtepomp en boiler en cv
- CV ketel merk AWB bouwjaar 2004
- Energielabel C
- Moderne meterkast met 10 groepen modern en krachtstroom
- Dubbelglas en voorzetramen
- 2 parkeerplaatsen overdekt achterzijde woning (1 blijft in gebruik door buren nr. 235)
- Betaald parkeren, vergunning ca. € 61,- per jaar geen wachtlijst
Bij woningen ouder dan 30 jaar hanteren wij standaard een ouderdoms- en asbestclausule. Een niet-bewoningsclausule is van toepassing.
_____________________________________________________________________________
Unique townhouse of 249 m² on a generous plot of 525 m² with a modern garden house! The spacious cellar (51 m²) is not included in the living area.
This exceptional and spacious home features three bedrooms (expandable), two bathrooms, and a very large split-level living area with a conservatory. At the rear of the beautifully landscaped garden stands a modern garden house (2018) with its own kitchen, bathroom, and living space. Beneath the entire house is a cellar with, among other things, a sauna, shower, study, and laundry area. This unique property with garden house offers ample possibilities for a home office or studio. Two covered parking spaces are located at the rear. The house requires some modernization.
The Hoge Rijndijk is situated in the popular Rijndijk neighborhood, close to primary and secondary schools, NS station Lammenschans, Roomburg Park, Cronesteyn Park, and various sports facilities such as tennis and hockey. The historic city center of Leiden with its cafés, shops, museums, and canals is just a few minutes by bike. Science Park, the LUMC, Leiden Central Station, and highways to Amsterdam, The Hague (A4), and Utrecht (N11) are also easily accessible.
Layout
Ground floor:
Front garden leads to the entrance. From the vestibule, you enter the spacious hall with access to the living room, sitting room, kitchen, toilet, cellar, and stairs to the first floor. The split-level living room has multiple levels, a dining area with gas fireplace, original built-in cupboards, and a staircase to the cellar. The central seating area features a wood-burning fireplace, high ceilings with ornaments, and original details. Through an original glass wall with en-suite doors, you reach a second seating area that steps into the conservatory. Large windows and skylights create a bright, sunny space with garden views. The closed kitchen is accessible from the living room and is equipped with appliances including an induction hob, dishwasher, refrigerator, and extractor. It also has garden access.
The west-facing garden of approx. 315 m² is divided into multiple zones with terraces, lawns, and ponds. A path leads to the rear section with the garden house (approx. 42 m²), connected by a small bridge. The garden features several sculptures, which remain except for two specified pieces.
Garden House:
The modern garden house offers a spacious L-shaped living area with open kitchen, including induction hob, dishwasher, fridge-freezer, and overhead cupboards with integrated extractor. The bathroom has a walk-in shower, vanity, toilet, and extra storage. A skylight and large windows make the space bright and versatile, with rear access. The garden house has underfloor heating via a heat pump, plus a boiler and central heating. Behind it is a technical/utility room with additional storage. Two covered parking spaces are located at the rear, one belonging to the property.
First floor:
Spacious landing with skylight and built-in cupboard. Front bedroom with built-in cupboard and fireplace, high ceilings, and original windows. Rear bedroom with adjoining walk-in closet and doors to a large west-facing balcony with garden and greenery views. Direct access to the main bathroom with corner jacuzzi, walk-in shower, toilet, bidet, radiator, and vanity. Second bathroom off the landing with shower, toilet, radiator, and vanity.
Cellar:
Accessible from the living room and hall, comprising multiple rooms including a study, sauna with kitchen unit, shower room, hobby room with sink, and laundry area. Ceiling heights vary between approx. 2 m and slightly lower.
Details:
- Built in 1925
- Total living area 249 m² (main house 207 m², garden house 42 m²)
- Plot size 525 m²
- Total volume 1,082 m³ (house 889 m³, garden house 193 m³)
- Recent building inspection report available
- 12 solar panels
- 2 bathrooms
- Underfloor heating in garden house via heat pump, boiler, and central heating
- Central heating (AWB, 2004)
- Energy label C
- Modern meter cupboard with 10 groups and high power connection
- Double glazing and secondary glazing
- 2 covered parking spaces at the rear (1 used by neighbors, No. 235)
- Paid parking, permit approx. €61/year, no waiting list
For homes older than 30 years, standard age and asbestos clauses apply. A non-occupancy clause is applicable.
Specifications
Address
2314 AG Leiden
Price
Details
Layout
Garden
Garage
Bergruimte
Energy rating
Downloads
Your estate agent
Gijs de Kok
Interested in this property? We will gladly contact you. Fill in this form for a viewing of this property or for more information. We will contact you as soon as possible.






