Sfeervol en goed onderhouden grachtenpand bestaande uit twee wooneenheden, midden in het historische hart van Leiden!
Dit karakteristieke pand is volledig gerenoveerd in 2000 en is sindsdien uitstekend onderhouden. Tijdens de verbouwing zijn onder andere de kozijnen vervangen (voorzien van dubbel glas), is de volledige verwarmingsinstallatie vernieuwd, zijn de elektrische installaties gemoderniseerd en zijn de muren grotendeels geïsoleerd (uitgezonderd de hal en badkamer). Daarnaast zijn ook het dak vernieuwd en geïsoleerd, en is zowel de keuken als de badkamer vernieuwd. De badkamer en keuken van het appartement op de begane grond dateren uit 2005.
Het pand heeft een schitterend uitzicht over de Leidse grachten en beschikt over een energielabel D.
Indeling
Begane grond (appartement 1)
•Ruime woonkamer met een plafondhoogte van 2,92 m.
•Open keuken aan de voorzijde met inbouwapparatuur.
•Slaapkamer aan de achterzijde, grenzend aan een badkamer voorzien van douche, wastafel en toilet.
•Handige bergruimte/kast.
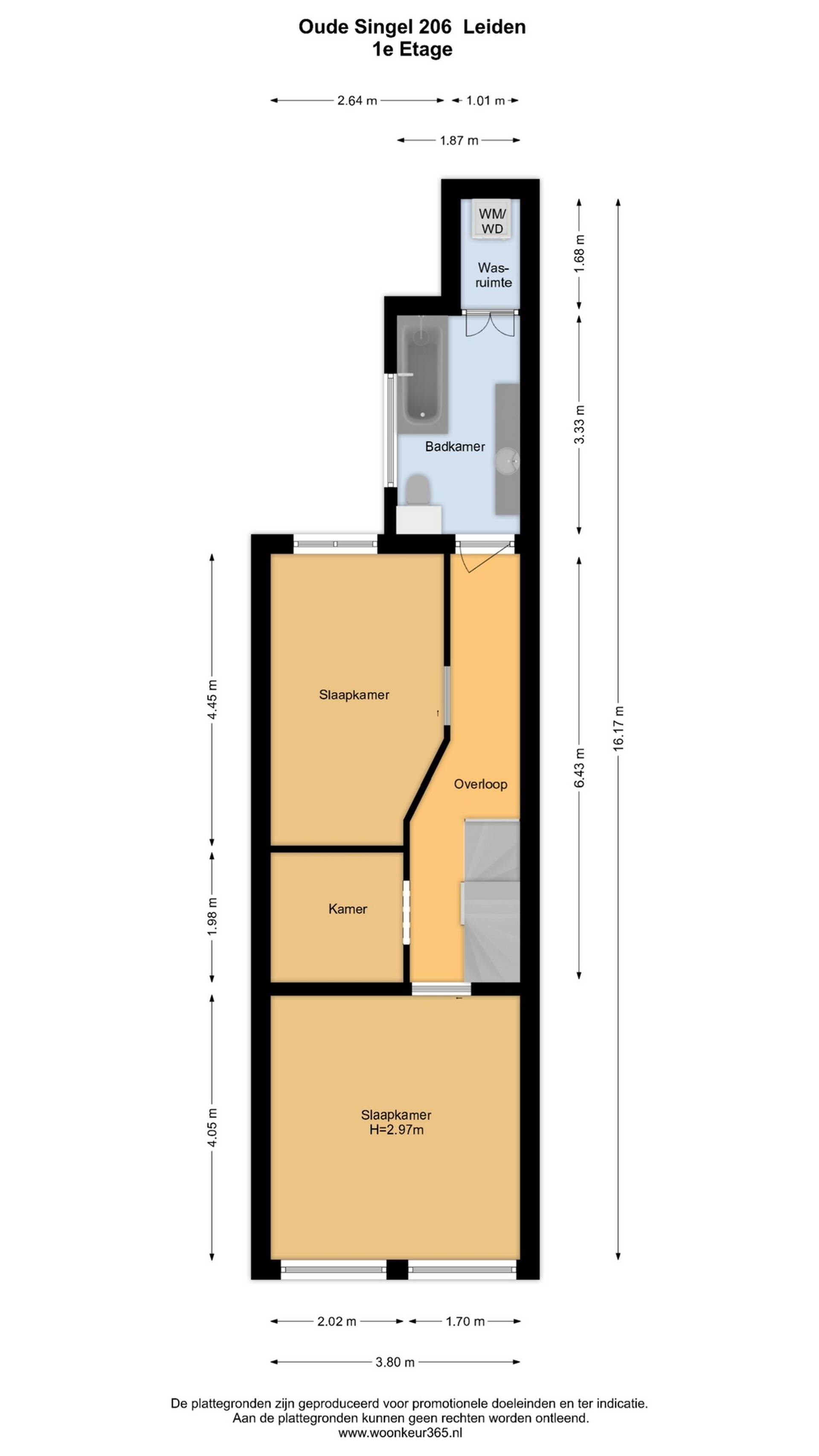
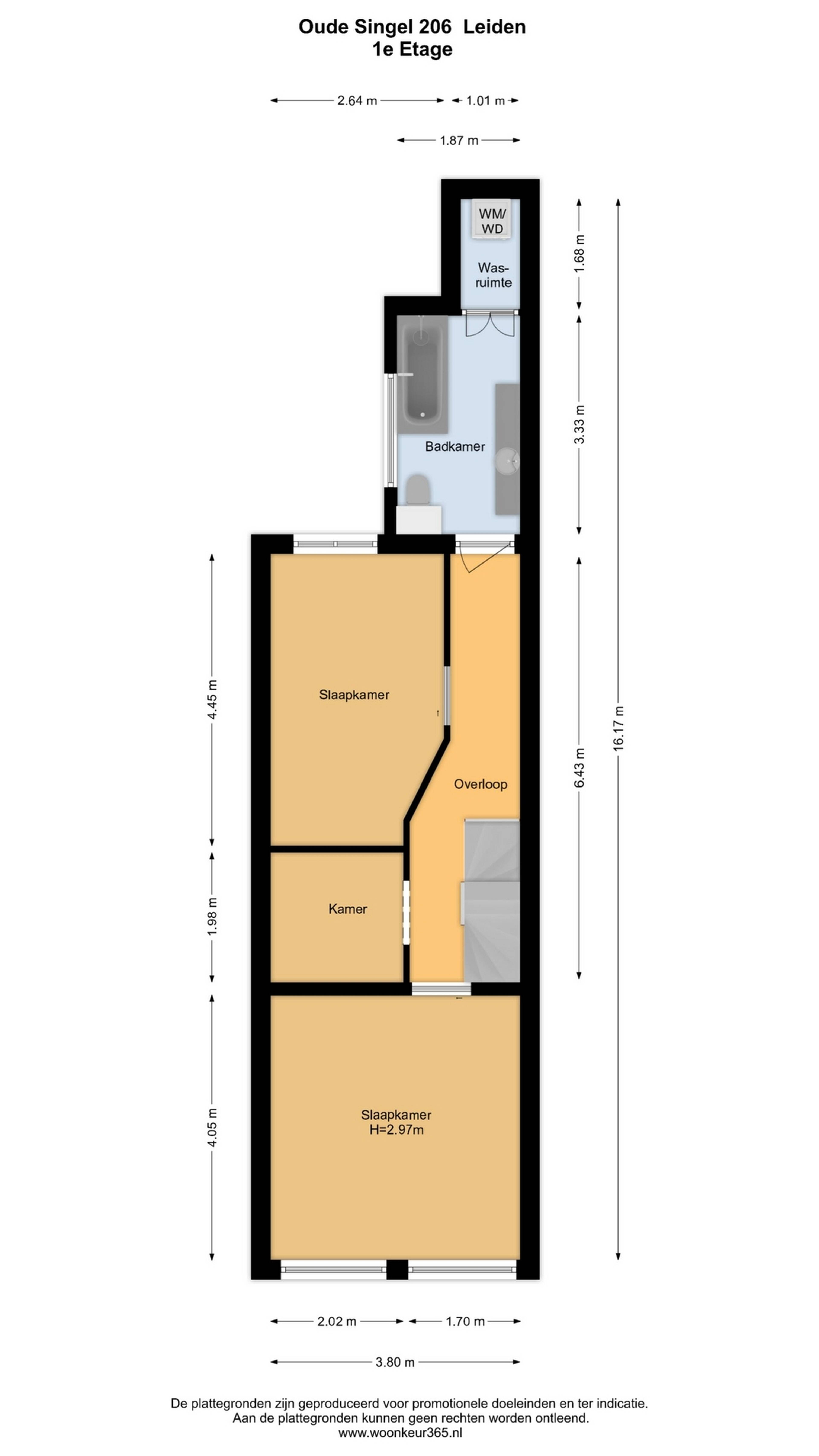
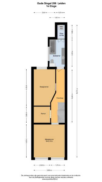
Eerste verdieping (appartement 2, 1e etage)
•Overloop met toegang tot diverse vertrekken.
•Ruime slaapkamer aan de achterzijde.
•Tweede slaapkamer aan de voorzijde met een plafondhoogte van 2,97 m.
•Extra kamer (bijvoorbeeld als werkkamer of walk-in closet te gebruiken).
•Badkamer met ligbad, douche, toilet en wastafel, plus een separate wasruimte.
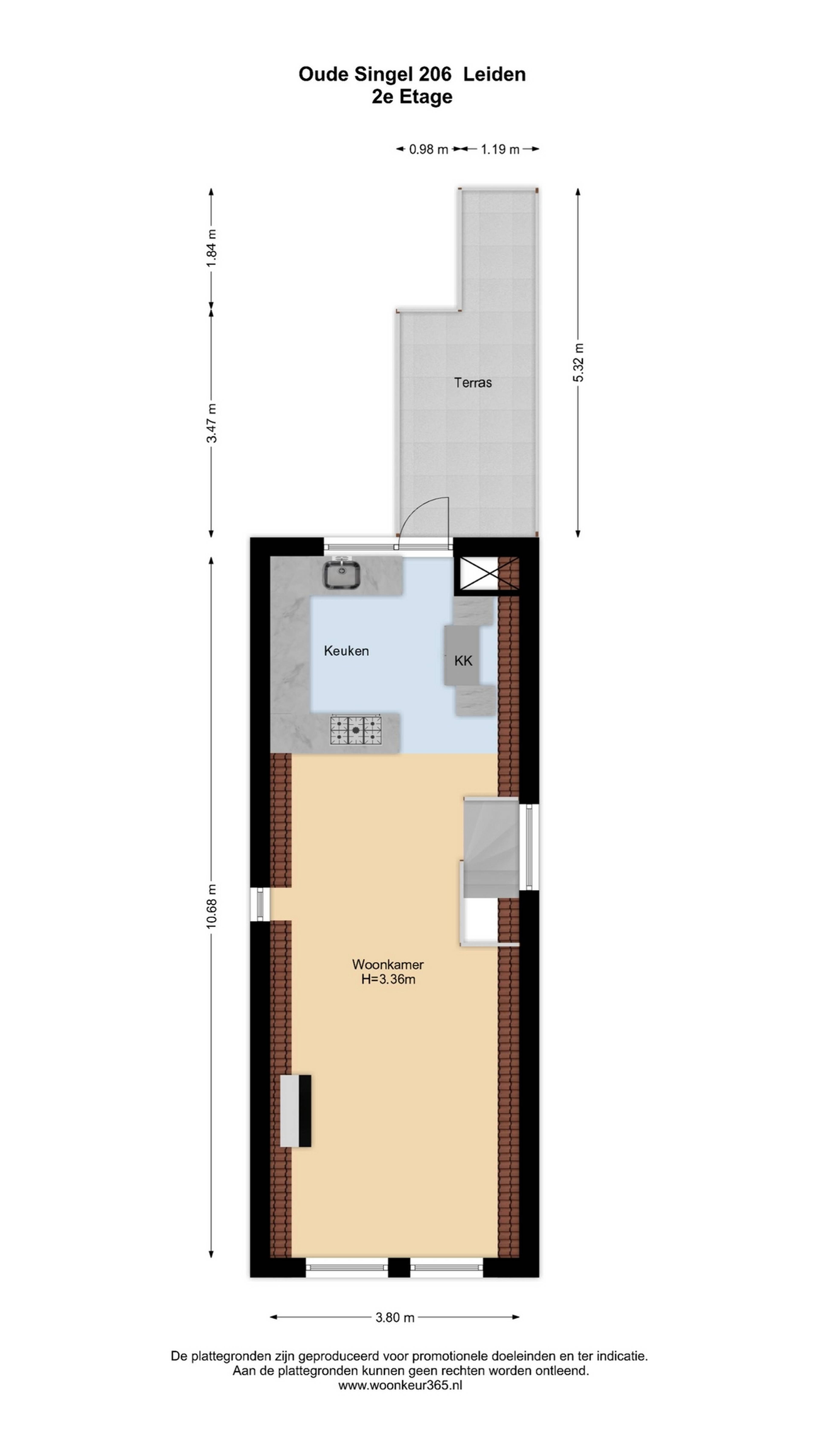
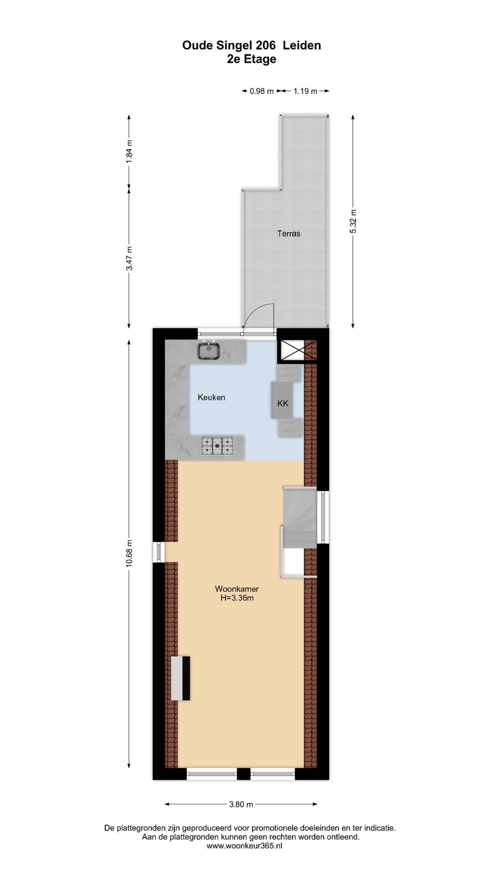
Tweede verdieping (appartement 2, 2e etage)
•Royale, lichte woonkamer met een plafondhoogte van 3,36 m.
•Open keuken voorzien van diverse inbouwapparatuur en voldoende kastruimte.
•Direct toegang tot een heerlijk dakterras van circa 9,7 m².
Bijzonderheden
•Woonoppervlakte: 138,4 m²
•Gebouwgebonden buitenruimte: 9,7 m² (dakterras)
•Bruto inhoud: 415 m³
•Bouwjaar 1895
•Totaal 6 kamers, waaronder 3 slaapkamers, 2 woonkamers en een extra kamer.
•Energielabel D
•Verwarming en warm water middels recente installaties.
•Geheel voorzien van dubbel glas.
•Uitstekend onderhouden.
Locatie & Bereikbaarheid
Gelegen aan één van de mooiste grachten van Leiden, in het geliefde centrum. Alle voorzieningen zoals winkels, restaurants, musea en cafés liggen op loopafstand. Station Leiden Centraal bevindt zich op circa 10 minuten fietsen. Daarnaast is de woning goed bereikbaar met de auto via de uitvalswegen richting de A4 en A44.
Over Leiden
Leiden staat bekend als stad van de wetenschap, historie en cultuur. Met de oudste universiteit van Nederland, vele musea, grachten en hofjes, biedt deze stad een unieke combinatie van bruisend stadsleven en historische charme. De gezellige terrassen, restaurants en boetieks maken Leiden tot een heerlijke plek om te wonen.
Een unieke kans voor wie op zoek is naar een instapklare woning op een toplocatie in Leiden!
Voor meer informatie of het plannen van een bezichtiging, neem contact op met RE/MAX Makelaars.