English text see below
In de geliefde Professorenwijk ligt deze sfeervolle jaren ’30 woning met een karakteristieke erker aan de voorzijde, drie slaapkamers en een heerlijke achtertuin. De woning dient volledig gemoderniseerd te worden, maar biedt daarmee de perfecte kans om alles geheel naar eigen smaak en wens in te richten.
De Buys Ballotstraat is een gezellige, rustige straat. Gelegen nabij diverse buurtwinkels, basisscholen en NS station Lammenschans. Op enkele fietsminuten bevinden zich de historische binnenstad, park Roomburg, park Cronesteijn, hockey- en tennisvelden en middelbare scholen.
Bekijk ook de video!
Indeling
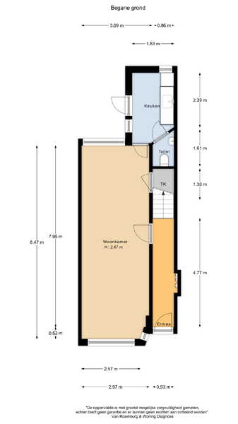
Begane grond:
Entree. Royale hal met meterkast, trapopgang naar de eerste verdieping en toegang tot de woonkamer. De lichte en zonnige woonkamer beschikt over een karakteristieke erker, een praktische trapkast en aan de achterzijde nog originele glas-in-loodramen.
Vanuit de woonkamer is de gesloten keuken bereikbaar. De keuken biedt toegang tot de heerlijke, circa 11 meter diepe achtertuin. De tuin beschikt over een achterom en een aangebouwde houten berging voorzien van elektra.
Tevens bevindt zich aan de keuken een ruim toilet met fonteintje.
1e verdieping:
Ruime overloop met toegang tot de twee slaapkamers , de badkamer, de trapopgang naar de 2de verdieping en het dakterras met vlondertegels. De ruime badkamer aan de voorzijde heeft een douche en een wastafel.
2e verdieping:
Via een vaste trap bereik je de open zolderverdieping, voorzien van een dakraam en knieschotten voor extra bergruimte. Hier bevindt zich tevens de cv-ketel. Op deze verdieping is het mogelijk om meerdere slaapkamers te realiseren door het plaatsen van dakkapellen.
In de presentatie zijn ook een aantal digitale stylingfoto’s opgenomen die de mogelijkheden van de woning goed laten zien.
Bijzonderheden:
- Bouwjaar 1936
- Beschermd stadsgezicht
- Gebruiksoppervlakte 85m2
- Overige inpandige ruimte 4m2 (berging)
- Gebouw gebonden buitenruimte 5m2 (dakterras)
- Perceeloppervlakte 87m2
- Inhoud 310m3
- Meterkast met 2 groepen(smelt)
- Schilderwerk buitenzijde 2024
- CV ketel Remeha Avanta, bouwjaar 2014
- Achtertuin met achterom
- Dak geïsoleerd
- Granito vloer in keuken en in de hal onder vloerbedekking.
- Parkeren voor vergunninghouders (vergunning ca. € 55,-- per jaar, geen wachtlijst)
- Oplevering in overleg
Bij woningen ouder dan 30 jaar hanteren wij standaard een asbest- en ouderdomsclausule.
-----------------------------------------------------------------------------------------------------------------------------------------
In the beloved Professorenwijk, this charming 1930s home is located, featuring a characteristic bay window at the front, three bedrooms, and a delightful backyard. The property requires complete modernization, offering the perfect opportunity to design and finish it entirely according to your own taste and preferences.
Buys Ballotstraat is a pleasant and quiet street. The house is conveniently located near various local shops, primary schools, and Lammenschans railway station. Within just a few minutes by bike, you will find the historic city center, Park Roomburg, Park Cronesteijn, hockey and tennis courts, and several secondary schools.
Be sure to watch the video as well!
Layout
Ground floor:
Entrance. Spacious hallway with meter cupboard, staircase to the first floor, and access to the living room. The bright and sunny living room features a characteristic bay window, a practical storage cupboard under the stairs, and original stained-glass windows at the rear.
The separate kitchen is accessible from the living room. The kitchen provides access to the lovely backyard, approximately 11 meters deep. The garden has rear access and an attached wooden storage shed equipped with electricity.
There is also a spacious toilet with a small washbasin adjacent to the kitchen.
First floor:
Spacious landing with access to two bedrooms, the bathroom, the staircase to the second floor, and the roof terrace with decking tiles. The generously sized bathroom at the front includes a shower and washbasin.
Second floor:
A fixed staircase leads to the open attic floor, fitted with a skylight and knee walls providing additional storage space. The central heating boiler is also located here. It is possible to create multiple bedrooms on this floor by installing dormer windows.
The presentation also includes several digitally staged photos to illustrate the property's potential.
Features:
- Built in 1936
- Located in a protected cityscape area
- Usable living area: 85 m²
- Additional internal space: 4 m² (storage)
- Building-related outdoor space: 5 m² (roof terrace)
- Plot size: 87 m²
- Volume: 310 m³
- Meter cupboard with 2 fused groups
- Exterior painting completed in 2024
- Remeha Avanta central heating boiler, built in 2014
- Backyard with rear access
- Roof insulated
- Original granito flooring in the kitchen and in the hallway underneath the carpet
- Permit parking (permit approx. €55 per year, no waiting list)
- Transfer date in consultation
For properties older than 30 years, we standardly include an asbestos and age clause in the purchase agreement.