View
Information
Description
See English text below
Sfeervolle jaren ’30 woning met veel authentieke details, zoals glas-in-loodramen, een granitovloer, een karakteristieke erker en paneeldeuren. Deze charmante woning ligt in de geliefde Professorenwijk en is aan de voorzijde voorzien van een dakkapel en aan de achterzijde van een dakopbouw, wat zorgt voor aanzienlijk extra woonruimte. De woning beschikt over drie (slaap)kamers en een prettige achtertuin op het zonnige zuidwesten, compleet met houten berging en een achterom.
De Bakhuis Roozenboomstraat is een rustige straat in een mooie wijk. Op loopafstand bevinden zich diverse buurtwinkels, basisscholen en NS station Lammenschans. Op enkele fietsminuten sta je in de historische binnenstad met de vele restaurants, terrasjes, musea en grachten. Ook park Roomburg, hockey- en tennisvelden en middelbare/basisscholen liggen om de hoek. Tevens nabij diverse
uitvalswegen (A4/N11).
Bekijk ook de video!
Indeling:
Begane grond:
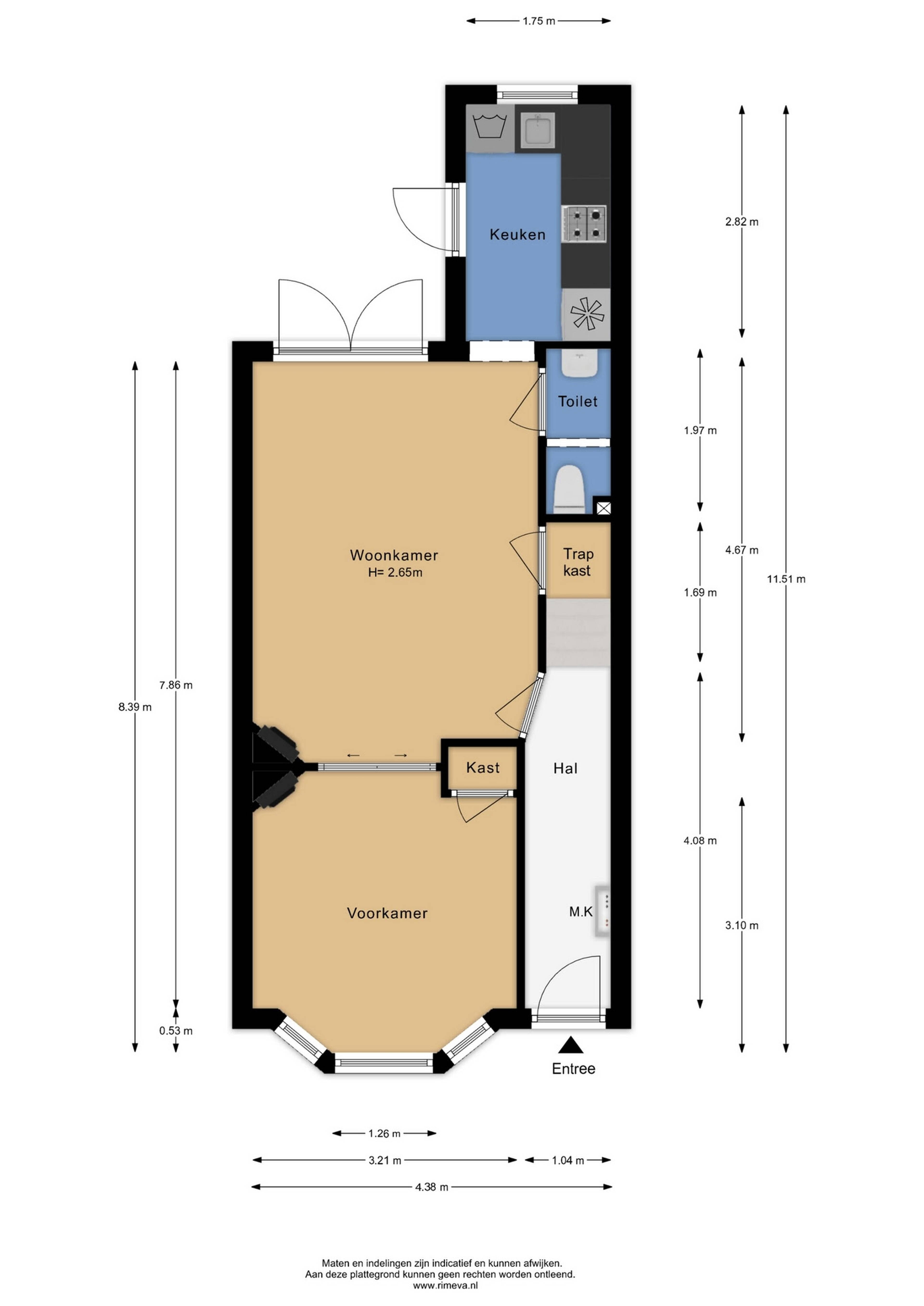
Authentieke entree met een hal voorzien van een originele granitovloer, meterkast en trapopgang naar de eerste verdieping. De lichte en sfeervolle woonkamer beschikt over fraaie en suite deuren, een karakteristieke erker, vaste kasten, een praktische trapkast, twee originele schouwen en een prachtige houten visgraatvloer met bies. Vanuit de woonkamer is er toegang tot een ruim toilet met fonteintje en de gezellige keuken. Via openslaande deuren (voorzien van hordeuren) in de woonkamer en een aparte deur in de keuken bereik je de royale achtertuin met houten berging en achterom. In de tuin kun je zowel heerlijk zitten op het terras direct aan de woonkamer als achterin de tuin voor extra privacy.
De halfopen, lichte keuken is uitgerust met onder andere een granitovloer, een 4-pits gaskookplaat, een ingebouwde combi oven/magnetron, een koel-/vriescombinatie en een afzuigkap. Ook bevindt zich hier de aansluiting voor de wasmachine. Dankzij een extra raam geniet je vanuit de keuken van een prettig uitzicht op de tuin. Overal op de begane grond zie je de mooie glas in lood ramen.
1ste verdieping:
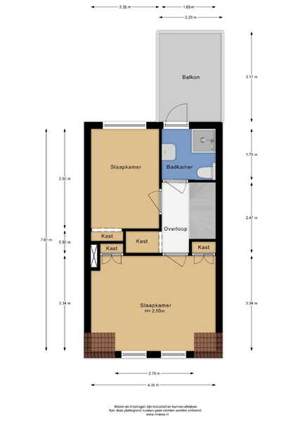
Overloop (houten vloer) met trapopgang naar de tweede verdieping en toegang tot twee (slaap)kamers, de badkamer en extra inloopkast. Beide kamers zijn licht en voorzien van een laminaatvloer. De zeer ruime slaapkamer aan de voorzijde beschikt over twee vaste kasten met stijlvolle houten deuren.
De moderne badkamer is smaakvol afgewerkt met houtlook tegels en uitgerust met een royale inloopdouche, een wastafelmeubel met spiegelkast, een toilet en een designradiator. Vanuit de badkamer heb je bovendien toegang tot het zonnige dakterras.
2de verdieping:
Via een vaste trap bereik je een verrassend ruime en lichte zolderverdieping. Aan de voorzijde zorgt een extra Velux-dakraam voor veel daglicht. Onder het schuine dak is een fraai op maat gemaakte kast gerealiseerd en daarnaast is er een praktische kastenwand aanwezig. Achter de knieschotten bevindt zich extra bergruimte en achter een schuifwand zijn de cv-opstelling en aanvullende opbergruimte gesitueerd. Deze royale ruimte is multifunctioneel in te delen en afgewerkt met een nette laminaat-vloer.
Er is een recent bouwtechnisch rapport aanwezig.
Bijzonderheden:
- Bouwjaar 1935
- Beschermd stadsgezicht
- Gebruiksoppervlakte 93m2
- Externe bergruimte 3m2 (berging)
- Inhoud 330m3
- Perceeloppervlakte 73m2
- Veel originele details: glas in lood ramen, granitovloer(hal, toilet, keuken), een erker, paneeldeuren en schouwen
- CV ketel merk Atag i28EC, bouwjaar 2018
- Energielabel C
- Meterkast met 6 groepen
- Overal dubbelglas en voorzetramen bij glas in lood
- Parkeren voor vergunninghouders (vergunning ca. € 61,- per jaar, geen wachtlijst)
- Oplevering in overleg
Bij woningen ouder dan 30 jaar hanteren wij standaard een ouderdoms- en asbestclausule.
____________________________________________________________________
Charming 1930s home featuring many authentic details, such as stained-glass windows, a granito floor, a characteristic bay window, and panel doors. This delightful property is located in the popular Professorenwijk and benefits from a dormer at the front and a roof extension at the rear, creating significant additional living space. The house offers three (bed)rooms and a pleasant southwest-facing backyard, complete with a wooden shed and rear access.
Bakhuis Roozenboomstraat is a quiet street in a nice neighborhood. Within walking distance, you will find various local shops, primary schools, and Lammenschans train station. The historic city center, with its many restaurants, terraces, museums, and canals, can be reached within just a few minutes by bike. Park Roomburg, as well as hockey and tennis facilities and secondary/primary schools, are also nearby. Conveniently located near major roads (A4/N11).
Be sure to watch the video!
Layout:
Ground floor:
Authentic entrance with a hallway featuring an original granito floor, meter cupboard, and staircase to the first floor. The bright and inviting living room boasts beautiful en-suite doors, a characteristic bay window, built-in cupboards, a practical under-stairs cupboard, two original fireplaces, and a stunning wooden herringbone floor with border. From the living room, there is access to a spacious toilet with washbasin and the cozy kitchen. Through French doors (with insect screens) in the living room and a separate door in the kitchen, you reach the generous backyard with wooden shed and rear access. The garden offers multiple seating areas, both directly adjacent to the house and at the back for added privacy.
The semi-open, bright kitchen is equipped with, among other things, a granito floor, a 4-burner gas hob, a built-in combination oven/microwave, a fridge/freezer, and an extractor hood. The washing machine connection is also located here. An additional window provides a pleasant view of the garden. Throughout the ground floor, you will find beautiful stained-glass windows.
First floor:
Landing (wooden floor) with staircase to the second floor and access to two (bed)rooms, the bathroom, and an additional walk-in closet. Both rooms are bright and finished with laminate flooring. The very spacious front bedroom features two built-in wardrobes with stylish wooden doors.
The modern bathroom is tastefully finished with wood-look tiles and equipped with a generous walk-in shower, a vanity unit with mirrored cabinet, a toilet, and a designer radiator. From the bathroom, you also have access to the sunny roof terrace.
Second floor:
A fixed staircase leads to a surprisingly spacious and bright attic floor. At the front, an additional Velux skylight provides plenty of natural light. Beneath the sloping roof, a beautifully custom-made cupboard has been installed, along with a practical wall of storage units. Behind the knee walls, there is extra storage space, and behind a sliding panel, you will find the central heating system and additional storage. This generous space is multifunctional and finished with neat laminate flooring.
A recent structural survey report is available.
Details:
Built in 1935
Designated protected cityscape
Living area: 93 m²
External storage: 3 m² (shed)
Volume: 330 m³
Plot size: 73 m²
Many original features: stained-glass windows, granito floors (hall, toilet, kitchen), bay window, panel doors, and fireplaces
Central heating boiler: Atag i28EC (2018)
Energy label C
Meter cupboard with 6 groups
Double glazing throughout and secondary glazing for stained glass
Permit parking (approx. €61 per year, no waiting list)
Completion in consultation
For properties older than 30 years, an age and asbestos clause will be included as standard.
Specifications
Address
2313 RC Leiden
Price
Details
Layout
Garden
Garage
Bergruimte
Energy rating
Your estate agent
Gijs de Kok
Interested in this property? We will gladly contact you. Fill in this form for a viewing of this property or for more information. We will contact you as soon as possible.






