View
Information
Description
English text see below
Heerlijk ruim en comfortabel wonen in Oegstgeest. Deze moderne hoekwoning biedt met een woonoppervlakte van maar liefst 153m2 volop leefruimte met een riante woonkamer, een fraai aangelegde zonnige achtertuin op het zuiden en 6 (slaap)kamers. Extra pluspunten zijn onder meer de sfeervolle open haard, het markante trappenhuis met hoge raampartijen, het dakterras en de veranda.
De woning ligt nabij de jachthaven in een rustige, verkeersluwe straat in de kindvriendelijke wijk Poelgeest. Aan de voorzijde kijkt u vrij uit over een speelveldje, water en veel groen. In de directe omgeving bevinden zich onder andere een basisschool, kinderopvang, tandartsenpraktijk en sportschool. De levendige binnenstad van Leiden met een breed aanbod aan winkels, restaurants en cafés is binnen circa 10 minuten per fiets bereikbaar. Daarnaast is de ligging ten opzichte van de A4 en A44 zeer gunstig.
Indeling
Begane grond
Via de voorzijde bereik je de entree van de woning. De hal is sfeervol afgewerkt met houten lambrisering en een plavuizenvloer in warme natuurtinten. Hier heb je toegang tot de meterkast, trapkast, moderne toilet, de trapopgang en de ruime woonkamer. De plavuizenvloer is doorgelegd over de gehele begane grond, wat zorgt voor een mooi en harmonieus geheel.
De royale en zonnige woonkamer beschikt over strak gestuukte wanden, een karakteristieke schouw met open haard en een schuifpui naar de tuin. Dankzij de grote raampartijen aan zowel de voor- als achterzijde geniet u hier van veel natuurlijke lichtinval en een prettig uitzicht.
De royale keuken is opgesteld in een praktische hoekopstelling en biedt volop werk- en bergruimte. De keuken heeft een klassiek-moderne uitstraling en is voorzien van diverse inbouwapparatuur, waaronder een vaatwasser, koel-/vriescombinatie, elektrische oven, 4-pits inductiekookplaat en een landelijke schouw met geïntegreerde afzuigkap. Via dubbele openslaande deuren bereik je de zonnige achtertuin. De gehele begane grond is voorzien van vloerverwarming.
De fraai aangelegde achtertuin ligt op het zuiden en heeft een achterom. De tuin is voorzien van sierbestrating en diverse plantenborders. Achterin bevinden zich twee bergingen, waarvan één met veranda – een heerlijke plek om tot in de late uurtjes te genieten van lange zomeravonden met familie en vrienden.
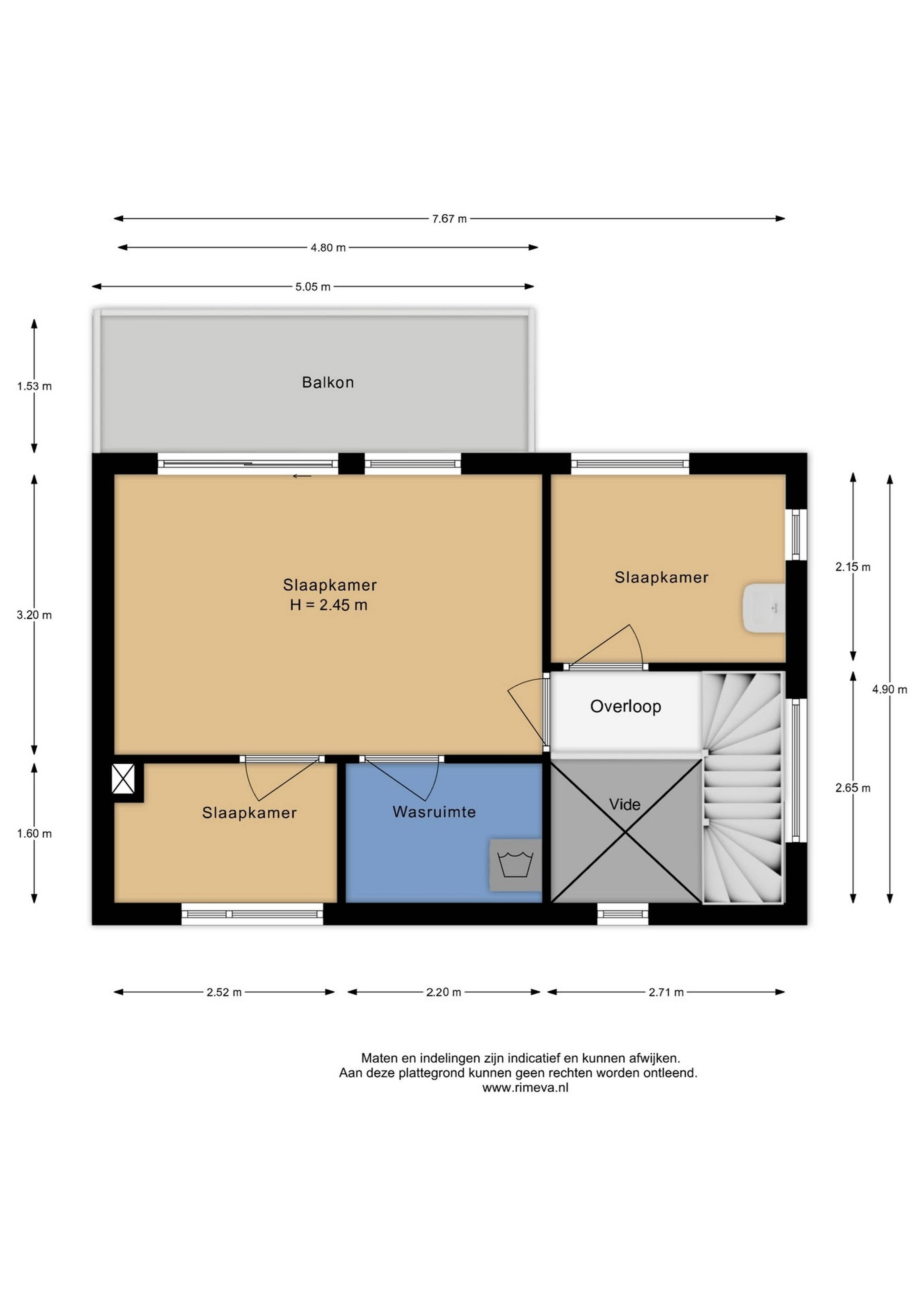
Eerste verdieping
De overloop is dankzij de vide en meerdere raampartijen opvallend licht en ruimtelijk. Ook hier zijn alle ramen voorzien van mooie shutters. Op deze verdieping bevinden zich drie fijne slaapkamers en een moderne badkamer. De slaapkamers zijn netjes afgewerkt en voorzien van een fraaie laminaatvloer. De volledig betegelde badkamer is uitgerust met een inloopdouche met regendouche en zitgedeelte, ligbad, toilet, mechanische ventilatie en een wastafelmeubel met spiegel.
Tweede verdieping
De tweede verdieping biedt via de ruime overloop toegang tot nog eens twee slaapkamers. Ook deze kamers zijn afgewerkt met een nette laminaatvloer. Door het platte dak gaat er geen ruimte verloren, wat zorgt voor optimaal gebruik van het vloeroppervlak. De grote kamer aan de achterzijde beschikt over een schuifpui naar het zonnige dakterras van circa 8 m2. Aansluitend is aan de voorzijde een kleinere kamer wat een fijne werkkamer zou kunnen zijn met ook hier weer het mooie uitzicht. Daarnaast is er aan de voorzijde nog een praktische berging/wasruimte bereikbaar met aansluiting voor o.a. wasapparatuur.
Bijzonderheden:
- Zeer ruime en comfortabele hoekwoning
- Bouwjaar 2004
- Perceel 173m2
- Gebruiksoppervlakte wonen 153m2
- Externe bergruimte 12m2 (schuur)
- Gebouwgebonden buitenruimte 8m2 (dakterras)
- Inhoud 534m3
- Moderne meterkast met 6 groepen
- Verwarming en warm water middels stadsverwarming
- Volledig geïsoleerd en voorzien van dubbelglas
- Energielabel A
- Royale achtertuin op het zuiden met twee bergingen, een veranda en een achterom
- Zonnepanelen (8)
- Vloerverwarming op de gehele begane grond en in de badkamer
- Elektrische zonneschermen achterzijde begane grond (2 stuks)
- Volop parkeergelegenheid (gratis)
- Oplevering in overleg
----------------------------------------------------------------------------------------------------------------------
Spacious and comfortable living in Oegstgeest. This modern corner house offers an impressive 153 m² of living space, providing plenty of room with a generous living room, a beautifully landscaped south-facing backyard, and 6 (bed)rooms. Additional highlights include the cozy fireplace, the striking stairwell with large windows, a roof terrace, and a veranda.
The house is located near the marina on a quiet, low-traffic street in the family-friendly Poelgeest neighborhood. At the front, you enjoy an open view of a playground, water, and plenty of greenery. In the immediate vicinity you will find, among other things, a primary school, childcare facilities, a dental practice, and a gym. The lively city center of Leiden, with its wide range of shops, restaurants, and cafés, can be reached in about 10 minutes by bicycle. In addition, the location is very convenient with respect to the A4 and A44 highways.
Layout
Ground floor
The entrance to the house is located at the front. The hallway is attractively finished with wooden paneling and a tiled floor in warm natural tones. From here you have access to the meter cupboard, under-stairs storage, modern toilet, staircase, and the spacious living room. The tiled floor continues throughout the entire ground floor, creating a harmonious and stylish look.
The generous and sunny living room features smoothly plastered walls, a characteristic fireplace surround with open fireplace, and sliding doors to the garden. Thanks to the large windows at both the front and rear, the space benefits from plenty of natural light and pleasant views.
The spacious kitchen is arranged in a practical corner layout and offers ample workspace and storage. The kitchen has a classic-modern appearance and is equipped with various built-in appliances, including a dishwasher, fridge/freezer combination, electric oven, 4-burner induction cooktop, and a country-style hood with integrated extractor fan. Through double French doors you can access the sunny backyard. The entire ground floor is equipped with underfloor heating.
The beautifully landscaped backyard faces south and has rear access. The garden features decorative paving and several plant borders. At the back there are two storage sheds, one of which includes a veranda - a wonderful place to enjoy long summer evenings with family and friends well into the night.
First floor
The landing feels remarkably bright and spacious thanks to the void and multiple windows. All windows on this floor are fitted with attractive shutters. This level features three comfortable bedrooms and a modern bathroom. The bedrooms are neatly finished and fitted with a stylish laminate floor. The fully tiled bathroom includes a walk-in shower with rain shower and seating area, bathtub, toilet, mechanical ventilation, and a washbasin cabinet with mirror.
Second floor
The second floor provides access from a spacious landing to two additional bedrooms. These rooms are also finished with a neat laminate floor. Thanks to the flat roof, no space is lost, allowing optimal use of the floor area.
The large rear bedroom has sliding doors leading to a sunny roof terrace of approximately 8 m². At the front there is a smaller room, which would make an excellent home office, again offering the pleasant open view. In addition, at the front there is a practical storage/laundry room with connections for washing equipment.
Special features
- Very spacious and comfortable corner house
- Built in 2004
- Plot size 173 m²
- Living area 153 m²
- External storage space 12 m² (shed)
- Building-related outdoor space 8 m² (roof terrace)
- Volume 534 m³
- Modern meter cupboard with 6 groups
- District heating for heating and hot water
- Fuly insulated and equipped with double glazing
- Energy label A
- Large south-facing backyard with two sheds, a veranda, and rear access
- 8 solar panels
- Underfloor heating on the entire ground floor and in the bathroom
- Electric awnings at the rear of the ground floor (2 units)
- Ample free parking
- Delivery in consultation
Specifications
Address
2341 KG Oegstgeest
Price
Details
Layout
Garden
Garage
Bergruimte
Energy rating
Your estate agent
Gijs de Kok
Interested in this property? We will gladly contact you. Fill in this form for a viewing of this property or for more information. We will contact you as soon as possible.







