In Zoeterwoude staat deze moderne, uitstekend onderhouden 4-kamer eengezinswoning, gebouwd in 2017. De woning heeft een ruime achtertuin op het zuidwesten, is voorzien van acht zonnepanelen en is volledig geïsoleerd! Binnen vindt u drie slaapkamers, een luxe keuken met kookeiland en een stijlvolle badkamer. Daarnaast beschikt de woning over een oprit aan de achterzijde. Een comfortabele en energiezuinige woning met een hoogwaardige afwerking!
In de directe omgeving vindt u onder meer diverse scholen, meerdere sportfaciliteiten en supermarkten. Het (historische) centrum van Leiden ligt op ongeveer 15 minuten fietsen en via de uitvalswegen (A4 en N11) bent u snel op weg naar Amsterdam, Rotterdam, Utrecht of Den Haag. Ook voor bos of strand hoeft u niet ver te rijden; binnen 20 minuten kunt u een heerlijke wandeling maken.
Indeling:
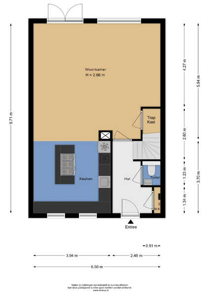
Begane grond:
Via de voortuin komt u in de hal van de woning met meterkast, modern toilet met fonteintje en trapopgang naar de eerste verdieping. Vanuit de hal heeft u toegang tot de royale en lichte L-vormige woonkamer met openslaande deuren naar de zonnige achtertuin. De moderne keuken is o.a. voorzien van een kookeiland met 6-pits gaskookstel, een oven en een (ingebouwde) afzuigkap. De keuken is tevens voorzien van een Quooker, een koel-/vriescombinatie, een vaatwasser en een combi-oven.
De zonnige achtertuin op het zuidwesten is mooi aangelegd en heeft een veranda voor warme en/of koude dagen. De berging is bereikbaar via de tuin én via de oprit.
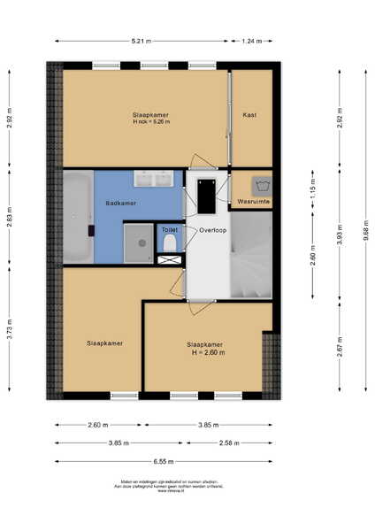
Eerste verdieping:
Via de vaste trap komt u op de overloop van de eerste verdieping. Hier heeft u toegang tot drie ruime slaapkamers, een toilet, de royale moderne badkamer en een aparte wasruimte met opstelling voor wasmachine en droger. De ruime slaapkamer aan de achterzijde is voorzien van een inbouwkast en een airco. De twee slaapkamers aan de voorzijde zijn ruim opgezet en hebben veel lichtinval. De royale badkamer beschikt over een ruime inloopdouche, een ligbad, een dubbel wastafelmeubel en een handdoekenradiator.
Vliering:
Via een vlizotrap is de zolder over de gehele breedte van de woning te bereiken, met een nokhoogte van 2,55 m. Deze ruimte is voorzien van een raam, de opstelling van de cv-ketel en veel bergruimte.
Bijzonderheden:
•Bouwjaar: 2017
•Gebruiksoppervlakte wonen ca. 127 m²
•Perceeloppervlakte: 181 m²
•Overige inpandige ruimte (vliering): ca. 11 m²
•Externe bergruimte (berging): ca. 9 m²
•Inhoud: ca. 490 m³
•8 zonnepanelen
•Instapklare woning
•Volledig geïsoleerd
•Achtertuin op het zuidwesten
•Energielabel A+
•Cv-ketel bouwjaar 2017
•Oplevering in overleg